Dom trójkątny [PROJEKT]
Jak zmieścić na niewielkiej działce trzypiętrowy dom dla czteroosobowej rodziny? Jedną z odpowiedzi jest projekt "domu trójkątnego", zlokalizowanego pomiędzy istniejącą zabudową mieszkaniową w dzielnicy Stare Włochy w Warszawie.

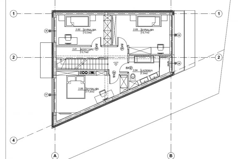
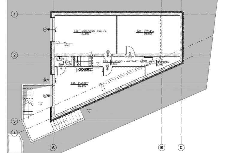
Forma budynku jest wynikiem analizy możliwości zabudowy nie ograniczającej naturalnego nasłonecznienia budynków sąsiednich. Rzeźbiarsko ponacinana, dynamiczna bryła domu podąża za obrysem granic trapezoidalnej działki. Działka zwęża się w kierunku ogrodu, a jej powierzchnia wynosi 269 mkw. W tym miejscu zaprojektowano trzypiętrowy dom o powierzchni użytkowej 223 m kw.

Wewnątrz udało się wygospodarować miejsce na doświetloną pracownię właściciela domu (mieści się ona w piwnicach, ma indywidualne wyjście na teren ogrodu), strefę dzienną na parterze z tarasem oraz cztery sypialnie z łazienkami na pierwszym i drugim piętrze. Na ostatnim piętrze znajdzie się taras widokowy, z którego roztacza się panorama na sąsiadujące stawy - glinianki Cietrzewia.
Projekt: MAG Architekci
- Więcej o:
![Jednorodzinny dom w Warszawie o powierzchni 265 mkw. Projekt: MFRMGR ARCHITEKCI: Marta Frejda, Michał Gratkowski, Waldemar Nowicki, Jarosław Urbański Jednorodzinny dom w Warszawie o powierzchni 265 mkw. Projekt: MFRMGR ARCHITEKCI: Marta Frejda, Michał Gratkowski, Waldemar Nowicki, Jarosław Urbański]()
Dom w formie "kostki" na wąskiej działce
![Najlepsze projekty Najlepsze projekty]()
Nowoczesne polskie projekty domów jednorodzinnych. 10 najlepszych
![Czarny dom Między Brzozami w Wojnówku Czarny dom Między Brzozami w Wojnówku]()
Mocny kontrast. Czarny dom między brzozami
![Żelazna 54 w Warszawie Żelazna 54 w Warszawie]()
Warszawa: Żelazna 54 z pozwoleniem na użytkowanie. To projekt pracowni SAAW
![Świdnicka 21 we Wrocławiu Świdnicka 21 we Wrocławiu]()
Świdnicka 21 - nowa inwestycja NOHO Investment tuż przy wrocławskim rynku
![Offroadhouse we Wrzeszczynie. Proj. Józef Franczok (współzałożyciel pracowni PORT) Offroadhouse we Wrzeszczynie. Proj. Józef Franczok (współzałożyciel pracowni PORT)]()
Offroadhouse - dom z kontenera portowego. Miejsce stworzone by zwolnić
![Amfiteatr w Łazienkach Królewskich Amfiteatr w Łazienkach Królewskich]()
Po kiluletnim remoncie Amfiteatr w Łazienkach Królewskich zostanie oficjalnie ponownie otwarty dla publiczności. Inauguracja sezonu „Amfiteatr 2.0”
![U góry: z lewej - przedszkole Ptasie Radio w Bobrownikach; Z prawej - Bernardyńska 1 we Wrocławiu. Na dole: z lewej - Murawa 2 w Poznaniu; Z prawej - Dom Szczotkowany w Swarzędzu U góry: z lewej - przedszkole Ptasie Radio w Bobrownikach; Z prawej - Bernardyńska 1 we Wrocławiu. Na dole: z lewej - Murawa 2 w Poznaniu; Z prawej - Dom Szczotkowany w Swarzędzu]()
Cztery polskie budynki w finale Baumit Life Challenge 2026














