Popularne "kostki" z PRL-u odeszły do lamusa? Niekoniecznie! Dziś powstają nowoczesne realizacje w tym stylu. Tak jak ten warszawski dom zaprojektowany w pracowni MFRMGR ARCHITEKCI.
Jednorodzinny dom w Warszawie o powierzchni 265 mkw. Projekt: MFRMGR ARCHITEKCI: Marta Frejda, Michał Gratkowski, Waldemar Nowicki, Jarosław Urbańskifot. Maciej Jeżyk
1 z 40Jednorodzinny dom w Warszawie o powierzchni 265 mkw. Projekt: MFRMGR ARCHITEKCI: Marta Frejda, Michał Gratkowski, Waldemar Nowicki, Jarosław Urbańskifot. Maciej Jeżyk
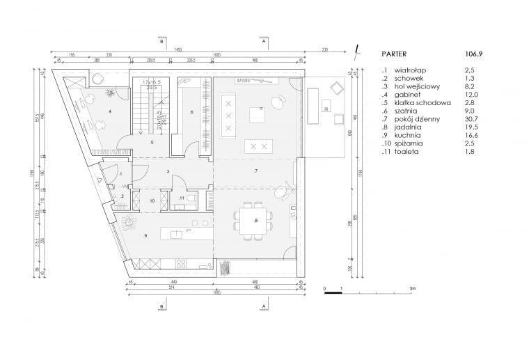
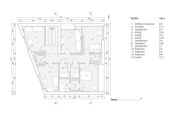
2 z 40Jednorodzinny dom w Warszawie o powierzchni 265 mkw. Projekt: MFRMGR ARCHITEKCI: Marta Frejda, Michał Gratkowski, Waldemar Nowicki, Jarosław Urbańskifot. Maciej Jeżyk3 z 40Jednorodzinny dom w Warszawie o powierzchni 265 mkw. Projekt: MFRMGR ARCHITEKCI: Marta Frejda, Michał Gratkowski, Waldemar Nowicki, Jarosław Urbańskifot. Maciej Jeżyk4 z 40Jednorodzinny dom w Warszawie o powierzchni 265 mkw. Projekt: MFRMGR ARCHITEKCI: Marta Frejda, Michał Gratkowski, Waldemar Nowicki, Jarosław Urbańskifot. Maciej Jeżyk5 z 40Jednorodzinny dom w Warszawie o powierzchni 265 mkw. Projekt: MFRMGR ARCHITEKCI: Marta Frejda, Michał Gratkowski, Waldemar Nowicki, Jarosław Urbańskifot. Maciej Jeżyk6 z 40Jednorodzinny dom w Warszawie o powierzchni 265 mkw. Projekt: MFRMGR ARCHITEKCI: Marta Frejda, Michał Gratkowski, Waldemar Nowicki, Jarosław Urbańskifot. Maciej Jeżyk7 z 40Jednorodzinny dom w Warszawie o powierzchni 265 mkw. Projekt: MFRMGR ARCHITEKCI: Marta Frejda, Michał Gratkowski, Waldemar Nowicki, Jarosław Urbańskifot. Maciej Jeżyk8 z 40Jednorodzinny dom w Warszawie o powierzchni 265 mkw. Projekt: MFRMGR ARCHITEKCI: Marta Frejda, Michał Gratkowski, Waldemar Nowicki, Jarosław Urbańskifot. Maciej Jeżyk9 z 40Jednorodzinny dom w Warszawie o powierzchni 265 mkw. Projekt: MFRMGR ARCHITEKCI: Marta Frejda, Michał Gratkowski, Waldemar Nowicki, Jarosław Urbańskifot. Maciej Jeżyk10 z 40Jednorodzinny dom w Warszawie o powierzchni 265 mkw. Projekt: MFRMGR ARCHITEKCI: Marta Frejda, Michał Gratkowski, Waldemar Nowicki, Jarosław Urbańskifot. Maciej Jeżyk11 z 40Jednorodzinny dom w Warszawie o powierzchni 265 mkw. Projekt: MFRMGR ARCHITEKCI: Marta Frejda, Michał Gratkowski, Waldemar Nowicki, Jarosław Urbańskifot. Maciej Jeżyk12 z 40Jednorodzinny dom w Warszawie o powierzchni 265 mkw. Projekt: MFRMGR ARCHITEKCI: Marta Frejda, Michał Gratkowski, Waldemar Nowicki, Jarosław Urbańskifot. Maciej Jeżyk13 z 40Jednorodzinny dom w Warszawie o powierzchni 265 mkw. Projekt: MFRMGR ARCHITEKCI: Marta Frejda, Michał Gratkowski, Waldemar Nowicki, Jarosław Urbańskifot. Maciej Jeżyk14 z 40Jednorodzinny dom w Warszawie o powierzchni 265 mkw. Projekt: MFRMGR ARCHITEKCI: Marta Frejda, Michał Gratkowski, Waldemar Nowicki, Jarosław Urbańskifot. Maciej Jeżyk15 z 40Jednorodzinny dom w Warszawie o powierzchni 265 mkw. Projekt: MFRMGR ARCHITEKCI: Marta Frejda, Michał Gratkowski, Waldemar Nowicki, Jarosław Urbańskifot. Maciej Jeżyk16 z 40Jednorodzinny dom w Warszawie o powierzchni 265 mkw. Projekt: MFRMGR ARCHITEKCI: Marta Frejda, Michał Gratkowski, Waldemar Nowicki, Jarosław Urbańskifot. Maciej Jeżyk17 z 40Jednorodzinny dom w Warszawie o powierzchni 265 mkw. Projekt: MFRMGR ARCHITEKCI: Marta Frejda, Michał Gratkowski, Waldemar Nowicki, Jarosław Urbańskifot. Maciej Jeżyk18 z 40Jednorodzinny dom w Warszawie o powierzchni 265 mkw. Projekt: MFRMGR ARCHITEKCI: Marta Frejda, Michał Gratkowski, Waldemar Nowicki, Jarosław Urbańskifot. Maciej Jeżyk19 z 40Makieta domu jednorodzinnego w Warszawie o powierzchni użytkowej 265 mkw.mat. MFRMGR ARCHITEKCI20 z 40Makieta domu jednorodzinnego w Warszawie o powierzchni użytkowej 265 mkw.mat. MFRMGR ARCHITEKCI21 z 40Makieta domu jednorodzinnego w Warszawie o powierzchni użytkowej 265 mkw.mat. MFRMGR ARCHITEKCI22 z 40Makieta domu jednorodzinnego w Warszawie o powierzchni użytkowej 265 mkw.mat. MFRMGR ARCHITEKCI23 z 40Diagram obrazujący sposób rozwiązania domu na wąskiej działcemat. MFRMGR ARCHITEKCI24 z 40Diagram obrazujący sposób rozwiązania domu na wąskiej działcemat. MFRMGR ARCHITEKCI25 z 40Diagram obrazujący sposób projektowania domu na wąskiej działcemat. MFRMGR ARCHITEKCI26 z 40Diagram obrazujący sposób projektowania domu na wąskiej działcemat. MFRMGR ARCHITEKCI27 z 40Diagram obrazujący sposób rozwiązania domu na wąskiej działcemat. MFRMGR ARCHITEKCI28 z 40Diagram obrazujący sposób projektowania domu na wąskiej działcemat. MFRMGR ARCHITEKCI29 z 40Diagram obrazujący sposób rozwiązania domu na wąskiej działcemat. MFRMGR ARCHITEKCI30 z 40Elewacjamat. MFRMGR ARCHITEKCI31 z 40Elewacjamat. MFRMGR ARCHITEKCI32 z 40Otoczenie budynku - sytuacjamat. MFRMGR ARCHITEKCI33 z 40Elewacjamat. MFRMGR ARCHITEKCI34 z 40Elewacjamat. MFRMGR ARCHITEKCI35 z 40Przekrójmat. MFRMGR ARCHITEKCI36 z 40Przekrójmat. MFRMGR ARCHITEKCI37 z 40Rzut parterumat. MFRMGR ARCHITEKCI38 z 40Rzut piętramat. MFRMGR ARCHITEKCI39 z 40Rzutmat. MFRMGR ARCHITEKCI40 z 40Ideamat. MFRMGR ARCHITEKCI
Głównymi wyzwaniami przy projektowaniu domu było usytuowanie bryły na małej działce przy rozbudowanym planie funkcjonalnym wnętrza. W rezultacie otrzymano zwarty budynek w typie "kostki", który nieznacznie rozszerza się do wnętrza działki. Prostą formę urozmaicają nieregularnie rozmieszczone okna.
Proces projektowy rozpoczął się od funkcji - dosyć rozbudowanej, głównie z uwagi na dużą liczbę domowników. W obszernej strefie dziennej znalazło się pięć sypialni, trzy łazienki i toaleta oraz zespół pomieszczeń gospodarczych. Głównym wyzwaniem było, z jednej strony, zmieszczenie funkcji w zwartej, ekonomicznie uzasadnionej bryle, z drugiej - wpasowanie jej w wąską działkę o nieregularnym kształcie.
Makieta domu jednorodzinnego w Warszawie o powierzchni 265 mkw. Projekt: MFRMGR ARCHITEKCI: Marta Frejda, Michał Gratkowski, Waldemar Nowicki, Jarosław Urbańskimat. MFRMGR ARCHITEKCI
Zadanie udało się rozwiązać dzięki maksymalnemu zbliżeniu budynku do granic działki, czyli na minimalne dopuszczalne prawem trzy metry. Wymagało to jednak znalezienia sposobu na doświetlenie pomieszczeń mieszkalnych. Architekci zaprojektowali więc głębokie na metr loggie, w których umieścili okna.
Dach osłonięty attyką
Forma dachu powstała jako kompromis miedzy oczekiwaniami inwestora, a wymogami wynikającymi z uwarunkowań miejscowego planu zagospodarowania przestrzennego. Inwestor zainteresowany był dachem płaskim lub o niewielkim stopniu nachylenia. Po długotrwałych poszukiwaniach kompromisowej formy zdecydowano się na trzy równolegle do siebie dachy dwuspadowe, ukryte za niewysoką attyką.
Ideamat. MFRMGR ARCHITEKCI
Elewacja z szarej, betonowej cegły
Fasada została zaprojektowana z szarej, betonowej cegły (materiału zwyczajowo używanego do budowy ogrodzeń). Rozwiązanie to było tanie, wytrzymałe i spełniające wymogi estetyczne, jakie chcieli osiągnąć architekci i inwestorzy. Stolarka okienna została wykonana przez lokalną firmę stolarską. Okna miały wpisywać się w ten sam moduł. Wnęki okienne zostały obudowane kołnierzem z drewna. Efekt wizualny, jaki udało się osiągnąć, to zestawienie ciepłego w odbiorze drewna wnęk okiennych i stolarki ze stosunkowo zimną, szarą cegłą elewacji.
Powierzchnia użytkowa domu wynosi 265 mkw.
Autorami projektu jest zespół z pracowni MFRMGR ARCHITEKCI w składzie: Marta Frejda, Michał Gratkowski, Waldemar Nowicki, Jarosław Urbański.
Przez dalsze aktywne korzystanie z naszego Serwisu (scrollowanie, zamknięcie komunikatu, kliknięcie na elementy na stronie poza komunikatem) bez zmian ustawień w zakresie prywatności, wyrażasz zgodę na przetwarzanie danych osobowych przez Pressland S.A. i Zaufanych Partnerów Pressland S.A. do celów marketingowych , w szczególności na potrzeby wyświetlania reklam dopasowanych do Twoich zainteresowań i preferencji w serwisach Pressland S.A. i w Internecie. Pamiętaj, że wyrażenie zgody jest dobrowolne a wyrażoną zgodę możesz w każdej chwili cofnąć.
Chcemy, aby korzystanie z naszego Serwisu było dla Ciebie komfortowe. W tym celu staramy się dopasować dostępne w Serwisie treści do Twoich zainteresowań i preferencji. Jest to możliwe dzięki przechowywaniu w Twojej przeglądarce plików cookies i im podobnych technologii. Informujemy, że poprzez dalsze korzystanie z tego Serwisu, bez zmiany ustawień Twojej przeglądarki, wyrażasz zgodę na zapisywanie plików cookies i im podobnych technologii w Twoim urządzeniu końcowym oraz na korzystanie z informacji w nich zapisanych. Ustawienia w zakresie cookie możesz zawsze zmienić (więcej o cookie w Politykach Prywatności poszczególnych serwisów).