Podwarszawski Dom z Obróconym Sercem od Z3Z ARCHITEKCI z nagrodą ICONIC AWARDS 2024
Dom z Obróconym Sercem, autorstwa architektów z pracowni Mateusza Zajkowskiego Z3Z Architekci, powstaje na leśnej działce pod Warszawą. Ostatnio projekt otrzymał międzynarodową nagrodę ICONIC AWARDS 2024: innovativ architecture w kategorii concept.

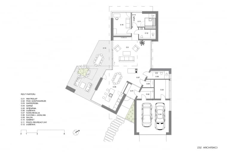
Dom o powierzchni 272 m2, został zaprojektowany na pięknej leśnej działce w Sękocinie Lesie pod Warszawą. Ciekawy układ działki względem stron świata oraz nieprzekraczalna linia zabudowy 20 m od drogi skłoniły do nietypowych rozwiązań w bryle budynku. Jurorzy konkursu ICONIC AWARDS: innovativ architecture docenili projekt Domu z Obróconym Sercem, przyznając mu nagrodę w kategorii concept. Przyjrzyjmy się mu dokładniej!


Dom z Obróconym Sercem - kuchnia w centrum
Bijące serce tego domu w którym wiele razy dziennie spotyka się rodzina, rozmawia, przygotowuje posiłki, planuje dzień przy porannej kawie znajduje się prawie na środku działki. Jest to centrum świata tworzonego przez dom. Przy dość dużej odległości od drogi tworzącej piękny ogród od strony południowo - wschodniej należało zapewnić kontakt wnętrza domu z przestrzenią przed nim. Kuchnia z jadalnią czyli serce domu znalazło się pośrodku działki między dwiema częściami ogrodu południowo - wschodnią i południowo - zachodnią. Aby zapewnić centralnej bryle najlepsze widoki na obydwie z tych przestrzeni oraz spowodować aby nie patrzyła w kierunku prostopadłym do drogi serce domu zostało obrócone o 27 stopni. Przedłużeniem wnętrza kuchni jest zadaszony taras opleciony wokół drzewa i tworzący razem z kuchnią jedną obróconą bryłę.


Dom z Obróconym Sercem - funkcjonalne bryły
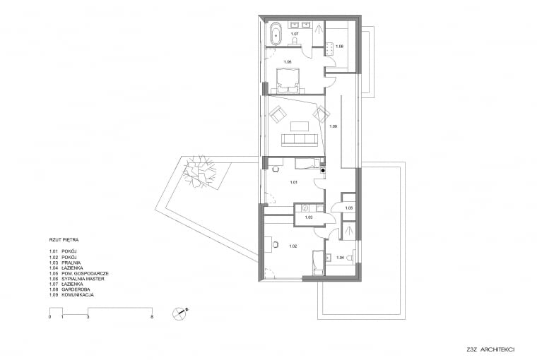
Oprócz bryły serca dom tworzą czytelnie wyodrębnione funkcjonalnie bryły. Przestrzeń między nimi to hol, salon oraz komunikacja. Między bryłami poprzez duże przeszklenia zostały stworzone obrazy z zieleni i nieoczywiste połączenia widokowe na końcu których projektanci zawsze starali się aby wyrastała zieleń. Kolejne bryły domu to bryła techniczna z ukrytym garażem, kotłownią i pomieszczeniami pomocniczymi. Za salonem dochodzimy do bryły rekreacyjnej w której znajduje się domowe SPA oraz gabinet/pokój hobby. W tej części jest także możliwość stworzenia zacisznego tarasu z przydomowym jacuzzi. Piętro to część nocna a w niej czytelnie oddzielona strefa rodziców od strefy dzieci poprzez wysoki hol tworzący antresolę nad salonem.


---
Dom z Obróconym Sercem
Rok projektu: 2023
Realizacja: 2024
Lokalizacja: Sękocin Las
Powierzchnia: 272 m2
Zespół autorski: Mateusz Zajkowski, Agnieszka Grądkiewicz, Yahor Yafimau

- Więcej o:
 
![Dom w Tychach II. Proj. DD Architekci Dom w Tychach II. Proj. DD Architekci]()
Dom w Tychach II od DD Architekci. Pochwała prostoty i funkcjonalności
![Glass House. Proj. Philip Johnson Glass House. Proj. Philip Johnson]()
Glass House - szklany dom Philipa Johnsona [IKONY ARCHITEKTURY]
![Dom z Jabłonią projektu BXB studio Dom z Jabłonią projektu BXB studio]()
Dom z Jabłonią projektu BXB studio
![Dom na wydmie. Proj. Exterio Dom na wydmie. Proj. Exterio]()
Dom wpisany w leśną wydmę na skraju Puszczy Kampinoskiej
!["Jedynak" w Bydgoszcy po remoncie. Zdjęcie z 2013 roku. "Jedynak" w Bydgoszcy po remoncie. Zdjęcie z 2013 roku.]()
Dom Towarowy „Jedynak” w Bydgoszczy – perła architektury handlowej z początku XX wieku
![Nowy woonerf na ul. Brandysa Nowy woonerf na ul. Brandysa]()
Warszawa: Znany deweloper współtworzy miejską przesztrzeń. Nowe ulice i woonerf dla mieszkańców Żoliborza
![Świetlica Terapeutyczna w Lewinie Brzeskim. Proj. Weronika Muras W² STUDIO PRACOWNIA ARCHITEKTURY Świetlica Terapeutyczna w Lewinie Brzeskim. Proj. Weronika Muras W² STUDIO PRACOWNIA ARCHITEKTURY]()
Nowa Świetlica Terapeutyczna w Lewinie Brzeskim – architektura z empatią
![Teatr im. Stefana Żeromskiego w Kielcach. Proj. rewitalizacji: WXCA Teatr im. Stefana Żeromskiego w Kielcach. Proj. rewitalizacji: WXCA]()
Jedna z najstarszych polskich scen teatralnych odzyskała dawny blask. Teatr im. Stefana Żeromskiego w Kielcach z nominacją do Mies van der Rohe Award 2026.






















