Kownatki Lake House - sztuka wypoczynku na Mazurach
Nad mazurskim jeziorem Kownatki powstaje zespół domów jednorodzinnych zaprojektowanych z myślą o rodzinnym wypoczynku na bezkompromisowym poziomie Inwestor i generalny wykonawca Rohe, przy wsparciu architektów z gdańskiej pracowni Archmondo, planuje stworzyć wyjątkowy kompleks Kownatki Lake House.

Zalesiony teren, na którym powstaje inwestycja, obejmuje 36 ha. Ogromnym jej atutem jest usytuowanie tuż nad jeziorem Kownatki, pomiędzy Nidzicą a Olsztynkiem. Zbiornik, objęty strefą ciszy i zaliczanym do wód pierwszej klasy czystości, to raj dla amatorów wędkowania. Jezioro wraz z otaczającymi, sosnowymi lasami było tłem i motywem przewodnim dla projektu.
Do każdej z posesji przynależeć będzie działka o powierzchni od 1200 m2 do 2000 m2, czyli wystarczająco dużo, aby cieszyć się przestrzenią i prywatnością. Jak tłumaczy architekt Piotr Kowalczyk, założyciel biura Archmondo:
– Najważniejsze było dla nas nadanie możliwie najlepszej formy jasno określonej funkcji. Chodziło o stworzenie miejsca, które stanie się ulubioną przestrzenią spędzania wolnego czasu dla rodzin z dziećmi oraz odwiedzających ich gości. Kluczowa w projekcie jest otaczająca natura. Aby rozmyć granicę między budynkiem a otoczeniem zastosowaliśmy m.in. wielkoformatowe przeszklenia, które otwierają dom na krajobraz.

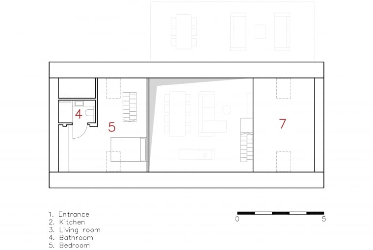
Pierwszy etap inwestycji to 20 domów o powierzchni 90 i 110 m2. Ich bryła nawiązuje do typowych mazurskich i warmińskich chat z dwuspadowym dachem, osadzonych na prostokątnym rzucie. Elewacje wykonano z połączenia aluminiowych płyt i naturalnego drewna z modrzewia syberyjskiego opalanego japońską metodą Shou Sugi Ban. Gwarantuje ona niepowtarzalny wygląd i zabezpieczenie materiału na dziesiątki lat.
Wnętrze domu sprzyja rodzinnej integracji, ale daje też każdemu domownikowi własną przestrzeń. Wysoka na dwie kondygnacje strefa wypoczynkowa z kominkiem jest połączona z kuchnią i jadalnią. To tutaj toczy się domowe życie. Po jej dwóch stronach zaplanowano trzy sypialnie, w tym największą z prywatną łazienką.
Schody w centralnej części prowadzą na otwartą antresolę, która może służyć jako miejsce do pracy albo strefa zabawy dla dzieci. Na piętrze po drugiej stronie zaprojektowano dodatkową sypialnię z własną łazienką.
W projekcie dominuje prostota i minimalizm środków, stonowane barwy oraz naturalne, szlachetne materiały najwyższej klasy. We wnętrzach to głównie jesionowe i świerkowe drewno, użyte m.in. na podbitce dachu, schodach, podłodze na antresoli i we frontach kuchennych, a także beton architektoniczny, z którego wykonana jest m.in. podłoga na parterze. Uwagę zwracają wielkoformatowe przeszklenia o cienkich ramach, w tym wyjątkowo lekkie i eleganckie przesuwne okna otwierające dom na dwie strony: taras z ogrodem oraz część frontową.
Za projektem i aranżacją zieleni w Kownatkach stoi renomowane studio krajobrazu topoScape, które wśród swoich sukcesów ma m.in. nominację do europejskiej nagrody architektonicznej Miesa van der Rohe za realizację warszawskiego Parku Akcji Burza.

Kownatki Lake House są wyjątkowe nie tylko ze względu na dopracowaną w każdym szczególe architekturę, ale również planowane udogodnienia. Aż 14 ha stanowić będą przestrzenie zielone i wspólne, m.in. prywatna plaża, molo i pomosty, korty tenisowe, boiska do padla i siatkówki, siłownia czy plac zabaw. W kolejnych etapach powstanie tu również restauracja i strefę wellness. Całość będzie funkcjonować jako zamknięta wspólnota z usługami concierge – od sprzątania, przez opiekę ogrodniczą, po dostawy lokalnych produktów.
- Więcej o:
![Elektrovnia Garbary w Poznaniu Elektrovnia Garbary w Poznaniu]()
Poznań: Elektrovnia Garbary. Nowa inwestycja na terenie dawnej elektrociepłowni
![Bunkier Club na terenie Browarów Wrocławskich Bunkier Club na terenie Browarów Wrocławskich]()
Archicom ożywia historyczny schron. Na terenie Browarów Wrocławskich powstaje podziemny Bunkier Club
![D.W Gigant w Międzygórzu D.W Gigant w Międzygórzu]()
Gigant w Międzygórzu - najpiękniejszy budynek sanatoryjny w polskich Sudetach. Jest jak z bajki!
![Willa Meander w Konstancinie-Jeziornej. Proj. PAWEL LIS ARCHITEKCI Willa Meander w Konstancinie-Jeziornej. Proj. PAWEL LIS ARCHITEKCI]()
Willa Meander w Kontancinie-Jeziornie. Architektura inspirowana biegiem rzeki
![Przedszkole "Ptasie Radio" w Bobrownikach. Proj. Projekt Plus Architekci Przedszkole "Ptasie Radio" w Bobrownikach. Proj. Projekt Plus Architekci]()
Z wizytą w „Ptasim Radiu” w Bobrownikach. Przedszkole, które uczy słuchać natury
![Moniuszki 8 po rewitalizacji - wizualizacja Moniuszki 8 po rewitalizacji - wizualizacja]()
Warszawa: rewitalizacja kamienicy przy ul. Moniuszki 8. To tu mieściła się słynna Café Adria
![Natura Konstancin od Rohe Natura Konstancin od Rohe]()
Natura Konstancin. Czytelna hierarchia form
![Dom w Bystrej. Proj. Gie El Dom w Bystrej. Proj. Gie El]()
Dom w Bystrej u podnóza Beskidów. Architektura i natura





























