Domy Sąsiedzkie pod Warszawą - proste i skromne ale z charakterem
Architekci z warszawskiej pracowni Exexe - Ligia Krajewska i Jakub Pstraś, zaprojektowali kameralne osiedle domów jednorodzinnych pod Warszawą.

Cztery budynki - tzw. bliźniaki, zlokalizowane będą pomiędzy gęstą zabudową sąsiednich działek. Wyzwaniem dla architektów z pracowni Exexe było rozplanowanie obiektów tak, by mieszkańcy każdego domu mogli cieszyć się prywatnością.
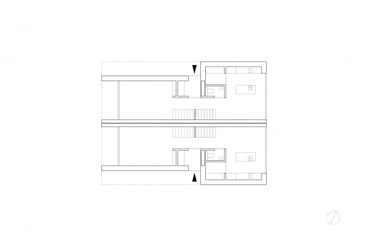
Bliźniaki zaprojektowano w oparciu o stałą zasadę: każdy segment posiada rzut w kształcie litery L i przekryty jest dachem o rzucie prostokątnym. Powstały charakterystyczne zadaszenia, zaznaczające strefy wejściowe i tarasy. Zadaszenia te jednocześnie wyznaczają przestrzenie prywatne. Budynki są dwukondygnacyjne, bez podpiwniczenia.

Segmenty A i B usytuowane są w pierwszej linii zabudowy. Przylegają one całą długością do ściany zabudowy sąsiedniej. Oba budynki różnią się nieco programem funkcjonalnym oraz powierzchnią użytkową. Domy C i D zostały zaprojektowane jako segmenty powtarzalne. Wszystkie budynki mają wspólny dojazd, dojścia, strefę wejściową na teren oraz śmietniki i studnie.
Obie grupy budynków przekryte są dachami o kącie nachylenia połaci 20° wspólnie tworzącym geometrię dwuspadową - takie rozwiązania nawiązuje do otaczającej zabudowy. Budynki A i B posiadają kalenicę równoległą do krótszego boku działki, a C i D prostopadłą -dynamizuje to kompozycję projektowanego układu urbanistycznego i sprawia, że wszystkie budynki skierowane są elewacją szczytową w kierunku podjazdu.

Domy Sąsiedzkie będą proste i skromne, ale nie pozbawione charakteru. Dominować będzie biel obecna w wykończeniach ścian, dachu, balustrad i ogrodzeń. Materiałem wykończeniowym dachu i ścian będzie blacha aluminiowa na rąbek stojący, płynnie przechodząca na elewacje, a wnęk – biały tynk. Z chłodną, blaszaną elewacją kontrastować będzie drewniana stolarka w naturalnym, ciepłym kolorze.
---
Domy Sąsiedzkie
Kategoria: Mieszkalne
Status: Pozwolenie na Budowę
Klient: Prywatny
Powierzchnia: 400 m2
Lokalizacja: okolice Warszawy
Zespół: Ligia Krajewska, Jakub Pstraś
Wizualizacje: Sebastian Grochowski
- Więcej o:
![Koncepcja architektoniczno- urbanistyczna zespołu mieszkalno-usługowego 'CENTRUM 50+' dla osób w wieku senioralnym przy ul. Warszawskiej w Gliwicach Koncepcja architektoniczno- urbanistyczna zespołu mieszkalno-usługowego 'CENTRUM 50+' dla osób w wieku senioralnym przy ul. Warszawskiej w Gliwicach]()
Osiedle dla seniorów w Gliwicach
![Dom nad Czarną Przemszą. Proj. MUS Architects. Dom nad Czarną Przemszą. Proj. MUS Architects.]()
Parterowy dom jednorodzinny nad Czarną Przemszą [PROJEKT]
![Dom jak nowoczesna stodoła. Proj. 3XB Architekci Dom jak nowoczesna stodoła. Proj. 3XB Architekci]()
Dom jednorodzinny jak nowoczesna stodoła [PROJEKT]
![Jednorodzinny dom w Toruniu. Proj. Z3Z ARCHITEKCI Jednorodzinny dom w Toruniu. Proj. Z3Z ARCHITEKCI]()
Dom jednorodzinny w Toruniu. Minimalizm i czytelna forma
![Dom w konstrukcji drewnianej szkieletowej Dom w konstrukcji drewnianej szkieletowej]()
Dom jednorodzinny zaprojektowany w konstrukcji drewnianej szkieletowej
![Nowoczesna stodoła - dom w Czeladzi; proj. be3 pracownia projektowa i Maciej Małek Nowoczesna stodoła - dom w Czeladzi; proj. be3 pracownia projektowa i Maciej Małek]()
Nowoczesna stodoła - dom jednorodzinny w Czeladzi
![Dom jednorodzinny w Zielonej Górze, autor: pracownia Łącki Krzywoszański Architekci. dom, dom jednorodzinny, zielona góra, lk-architekci, polska]()
Dom jednorodzinny w Zielonej Górze
![Mural "Stan Nieważkości" w hotelu Leonardo Royal Mural "Stan Nieważkości" w hotelu Leonardo Royal]()
„Kosmiczny” mural upamiętniający Irenę Kwiatkowską doczekał się kontynuacji. Dalszy ciąg znajdziemy... we wnętrzu hotelu














