Projekt budynku Miejsko-Gminnej Biblioteki Publicznej w Bełżycach. Architektura parametryczna
Jak połączyć dwa wydawałoby się odległe, hasła wielkich mistrzów architektury - „less is more” Miesa van der Rohe oraz „less is bore” Roberta Venturi? O projekcie koncepcyjnym oryginalnego budynku Miejsko-Gminnej Biblioteki Publicznej w Bełżycach opowiada jego twórca - Grzegorz Kłoda z pracowni architektonicznej GK-Atelier.

Projekt budynku Miejsko-Gminnej Biblioteki Publicznej w Bełżycach w założeniu jest odniesieniem do najlepszych światowych praktyk architektury bibliotecznej. Czerpie wzorce ze współczesnych trendów bibliotekarskich jednocześnie będąc namacalnym dowodem ogólnoeuropejskiego zjawiska dotyczącego bibliotek publicznych, mianowicie podnoszenia rangi bibliotek. Zjawisko to jest wynikiem zmieniających się upodobań oraz potrzeb współczesnych użytkowników. Biblioteki w kontekście lokalnym stają się najważniejszymi instytucjami kultury. Powstawanie nowych bibliotek publicznych ma też inne bardzo mocne uzasadnienie, mianowicie statystyki konsekwentnie pokazują, że liczba czytelników z roku na rok rośnie. Tak samo jak ich oczekiwania.
“Wzrost czytelnictwa o 9 punktów procentowych. 43% Polaków przeczytało w 2023 roku co najmniej jedną książkę” - dane z Biblioteki Narodowej.
Ponieważ jako twórca bardzo lubię różnego rodzaju kooperacje i wymianę myśli, postanowiłem do tego projektu zaprosić dwójkę młodych i zdolnych architektów z Lubelszczyzny, Martę Zionkowską oraz Oskara Ciuryłę. Każde z nas ma swoją pracownię i każde trochę inny styl projektowania. Pod szyldem GK-Atelier postanowiliśmy zmierzyć się z tematem i problematyką współczesnej biblioteki.





Zdecydowaliśmy, że najlepszym środkiem wyrazu jeśli chodzi o język architektoniczny będzie w tym wypadku technologia parametryczna. Jest to technologia tak nowatorska w polskiej przestrzeni użyteczności publicznej, że właściwie wręcz niespotykana poza większymi aglomeracjami, zwłaszcza w kontekście architektury kubaturowej. Było to niełatwe zadanie zwłaszcza, że wiedzieliśmy, iż budżet inwestycji nie będzie zbyt duży. Postanowiliśmy również, że podejmiemy próbę połączenia ze sobą dwóch wydawałoby się odległych, haseł głoszonych przez wielkich mistrzów architektury. „Less is more” Miesa van der Rohe oraz „less is bore” Roberta Venturi. Zdecydowaliśmy, że elementem wyjściowym będzie dla nas prostopadłościenna, modernistyczna bryła symbolizująca “LIM”, do której dodamy jeden charakterystyczny, bardziej śmiały i dynamiczny element symbolizujący “LIB”. Stąd nasz wzrok skierowaliśmy ku architekturze parametrycznej…
Wyjściowy kształt nakreśliliśmy bardzo szybko. Prosta, wręcz pudełkowata bryła budynku została urozmaicona poprzez dodanie dwóch charakterystycznych narożników będących wynikiem zabaw książką. Jeśli weźmiemy książkę do ręki i postawimy ją pionowo rozchylając okładki pod kątem 90 stopni, jej rozproszone kartki utworzą nam łuk który jest ćwiartką koła. W ten sposób wpadliśmy na pomysł zaokrąglenia jednego z narożników budynku. Drugi charakterystyczny narożnik powstał poprzez wsunięcie w niego otwartej książki i wycięcie powierzchni, którą wypełniła. W ten prosty sposób powstała łukowa, reprezentacyjna strefa wejściowa z podcieniem. Całość okraszona została rozproszonymi formami parametrycznymi, swobodnie rozmieszczonymi na gładkiej elewacji, poprzecinanej taflami wysokich okien. W rytmicznych formach tzw. parametryki, można odnaleźć inspirację powyginanymi kartkami papieru, czy niezliczonymi stronami książek puszczonymi bezwładnie w ruch podczas spontanicznego wertowania. Można też w bieli elewacji doszukać się nawiązania do koloru kartek papieru czekających na to, aż ktoś zapisze na nich swoją historię. I to wszystko może być prawdą - ponieważ projektując elewacje budynku biblioteki odwołaliśmy się do podstawowej funkcji biblioteki - pobudzania wyobraźni! Ten projekt jest próbą stworzenia przestrzeni uniwersalnej pozbawionej dosłowności i jednoznacznych odniesień. Jednocześnie głęboko stymulującej wyobraźnię i pozwalającej każdemu użytkownikowi zdecydować o tym, w świat jakiej historii, przeniesie się przekraczając próg bełżyckiej biblioteki.
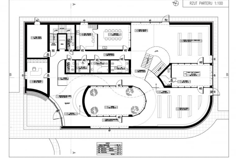
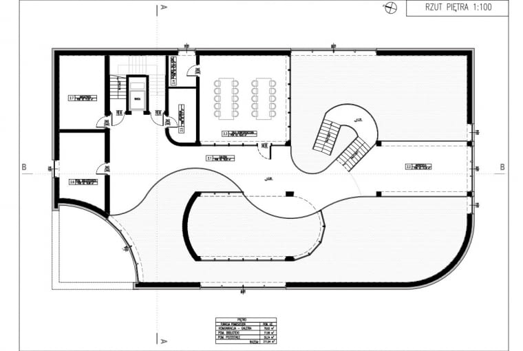
Układ funkcjonalny biblioteki to odpowiedź na potrzeby współczesnego użytkownika. Podczas jego projektowania swobodnie czerpaliśmy z jakże ważnej i aktualnej we współczesnym, post pandemiczny świecie, idei trzeciego miejsca. Jest też w nim pewna przewrotność. Jeśli odwołamy się do archetypu wnętrzarskiego stosowanego przez wieki w bibliotekach, zauważymy, że centrum biblioteki zawsze wypełniała forma otwartego aczkolwiek zadaszonego atrium/dziedzińca skupiającego dookoła kondygnacje z regałami wypełnionymi po brzegi książkami. Jednocześnie dziedziniec zapewniał w wielu przypadkach odpowiednie doświetlenie. Ten projekt to swoisty negatyw tego archetypu. Otwarte (od podłogi do dachu) przestrzenie, wypełnione regałami otaczają centralną, dwukondygnacyjną część, która ma głównie funkcję komunikacyjną i rekreacyjną. Światło również nie wpada centralnie, a poprzez okna umieszczone właśnie w bocznych częściach ekspozycji książek. Takie podejście pozwala na lepsze strefowanie przestrzeni dostosowanej do różnego rodzaju aktywności oraz zapewnia optymalne naświetlenie. Eliminuje również wszelkiego rodzaju kolizje akustyczne wynikające z nieodpowiedniego odseparowania poszczególnych stref.

W bibliotece znajdują się przestrzenie: administracyjne, socjalne, techniczne, sanitariaty, wystawowe, strefy ekspozycji książek dla dorosłych oraz dzieci, sale konferencyjne, wielofunkcyjne, sala dla dzieci oraz strefy rekreacyjno-wypoczynkowe. Jedną z najbardziej atrakcyjnych przestrzeni dla użytkowników będzie dach biblioteki, który częściowo pełni funkcję wypoczynkowo-widokową. Jest to niewątpliwie wartość dodana projektowanego obiektu zwłaszcza w sezonie letnim.
Projekt zagospodarowania terenu to w głównej mierze próba zachowania w jak największym stopniu terenów zielonych w oryginalnym stanie oraz zaprojektowanych wcześniej parkingów (przy okazji innej inwestycji na tej samej działce). W założeniu chcieliśmy zachować 100% istniejącego drzewostanu, tworząc w plątaninie drzew ciągi piesze z porozrzucanymi wzdłuż nich ławkami o organicznych formach. Chcieliśmy aby zewnętrzna, zielona część biblioteki również stanowiła atrakcyjną przestrzeń wypoczynkowo-rekreacyjną dla użytkowników zwłaszcza w sezonie letnim.
---
Metryczka projektu:
Nazwa inwestycji: Projekt koncepcyjny budynku Miejsko-Gminnej Biblioteki Publicznej w Bełżycach
Inwestor: Gmina Bełżyce
Projektanci: GK-Atelier w składzie Grzegorz Kłoda, Marta Zionkowska, Oskar Ciuryła
Powierzchnia: 700 mkw
Projekt: 2024 r.
Wizualizacje: Oskar Ciuryła
- Więcej o:
![Biblioteka na warszawskiej Białołęce, przy ulicy Kłosowej 6A. Proj. AMBIENT Biblioteka na warszawskiej Białołęce, przy ulicy Kłosowej 6A. Proj. AMBIENT]()
Ekologiczna biblioteka na warszawskiej Białołęce otwarta. Zdobyła już wiele nagród
![Biblioteka Nowy Horyzont w Kraśniku. Proj. Grzegorz Kłoda GK-Atelier i Justyna Baran Biblioteka Nowy Horyzont w Kraśniku. Proj. Grzegorz Kłoda GK-Atelier i Justyna Baran]()
Kolorowa Biblioteka "Nowy Horyzont" w Kraśniku z nagrodą German Design Award 2024. To projekt GK-Atelier
![Biblioteka Ibsena w Skien w Norwegii. Proj. Kengo Kuma & Associates. Biblioteka Ibsena w Skien w Norwegii. Proj. Kengo Kuma & Associates.]()
Biblioteka Ibsena w Skien w Norwegii od Kengo Kuma & Associates. Ma przypominać żyłę srebra
![Zero-energetyczna biblioteka publiczna w Kalifornii. Proj. Andrzej Kaczmarek Zero-energetyczna biblioteka publiczna w Kalifornii. Proj. Andrzej Kaczmarek]()
Zero-energetyczna biblioteka publiczna w Kalifornii. Polak zwycięzył międzynarodowy konkurs Architecture At Zero 2020
![Świetlica Terapeutyczna w Lewinie Brzeskim. Proj. Weronika Muras W² STUDIO PRACOWNIA ARCHITEKTURY Świetlica Terapeutyczna w Lewinie Brzeskim. Proj. Weronika Muras W² STUDIO PRACOWNIA ARCHITEKTURY]()
Nowa Świetlica Terapeutyczna w Lewinie Brzeskim – architektura z empatią
![Teatr im. Stefana Żeromskiego w Kielcach. Proj. rewitalizacji: WXCA Teatr im. Stefana Żeromskiego w Kielcach. Proj. rewitalizacji: WXCA]()
Jedna z najstarszych polskich scen teatralnych odzyskała dawny blask. Teatr im. Stefana Żeromskiego w Kielcach z nominacją do Mies van der Rohe Award 2026.
![Dworzec Łódź Kaliska Dworzec Łódź Kaliska]()
Nowy dworzec Łódź Kaliska już otwarty
![Wave Świnoujście Thermal & SPA. Proj. Medusa Group i IDS Architekci Wave Świnoujście Thermal & SPA. Proj. Medusa Group i IDS Architekci]()
Wave Świnoujście Thermal & SPA projektu Medusa Group i IDS Architekci. To pierwszy nadmorski kompleks termalno-wypoczynkowy w Europie Środkowej





















