Tak będzie wyglądać sala koncertowa w Płocku. Zwyciężył projekt plus3-architekci
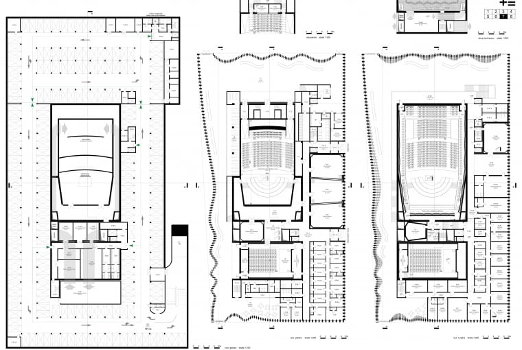
Nowoczesna sala koncertowa w Płocku powstanie w sąsiedztwie Teatru Dramatycznego, na przedłużeniu ulicy Tumskiej na Nowym Rynku. Architekci z pracowni plus3-architekci zaprojektowali nowoczesną, lekką bryłę, która stanie się symboliczną bramą miasta.

Rozstrzygnięto dwuetapowy konkurs architektonicznyna opracowanie koncepcji architektonicznej dla nowego budynku sali koncertowej w Płocku. Do udziału w konkursie zakwalifikowało się ponad 100 pracowni. Złożono 45 prac, a do drugiego etapu konkursu, zostało zakwalifikowanych tylko 5 autorskich projektów. Wśród nich znalazła się pracowniaplus3-architekci. Jury konkursu w składzie: arch. Magdalena Kozień-Woźniak (przewodnicząca Sądu Konkursowego), arch. Daniel Frąc (sędzia referent),arch. Roman Dziedziejko, arch. Janusz Łabuz, arch. Cezary Głuszek, Adam Mieczykowski (dyrektor Płockiej Orkiestry Symfonicznej), Jacek Terebus (zastępca Prezydenta Miasta ds. Rozwoju i Inwestycji), przyznało dwie nagrody (I i III), oraz dwa wyróżnienia. Pierwszą nagrodę otrzymała pracownia plus3-architekci.
Zwycięstwo w konkursie w konkursie, to dla naszego zespołu ogromne wyróżnienie. Po raz kolejny z wielkim entuzjazmem tworzyliśmy obiekt z wieloma wymogami akustycznymi, który cechuje się otwartością i dostępnością - zarówno dla jego użytkowników, ale także dla mieszkańców i miłośników Płocka – miasta, do którego od lat ściąga coraz więcej turystów
Koncepcja architektoniczna dla budynku sali koncertowej w Płocku oraz przylegających jej terenów, musiała sprostać wielu wymogom takim jak: doskonała akustyka, funkcjonalność, trwałość, energooszczędność i uszanowanie krajobrazu. Pracowniaplus3-architekci, zaproponowała projekt, który spełnia wszystkie kryteria jakości i funkcjonalności, jednocześnie dbając o walory wizualne. Spaja on obiekt z otoczeniem, naturalnie wnikając w tkankę przestrzeni miejskiej. Udało się to w dużej mierze dzięki jego położeniu – z jednej strony Teatr Dramatyczny, z drugiej nowy obiekt płockiej orkiestry, tworzą ważny punkt na mapie miasta. To symboliczna brama otwierająca spacer poprzez Nowy Rynek, ulicę Tumską, aż po Wzgórze Tumskie i nadwiślańską promenadę. Fasada budynku gra na emocjach przechodniów, a elewacja delikatnie poderwana w kierunku teatru, to w istocie nowy miejski portal.
Budynek został ukształtowany pomiędzy dwoma obiektami spójnej działalności, dzięki swemu położeniu obiekt wręcz „zasysa” przechodniów zarówno z kierunku dworca, jak i parku. Jest węzłem pieszym, lecz przede wszystkim, tworzy terytorium wspólnych działań dwóch instytucji kultury. To doskonałe miejsce na letnie wernisaże, happeningi, czy paradę ulicznych teatrów. Nowoczesna fasada nowej siedziby Płockiej Orkiestry Symfonicznej od strony parku i w okolicy pasażu Vuka Karadżica, przyjmuje miękki, przyjazny charakter otaczającej ją zieleni.
Istotnym celem projektuplus3-architekci, było stworzenie ekosystemu pomiędzy budynkiem, a tkanką miejską i otaczającą ją naturą. Linearne, proste ścieżki tworzą kanwę całego założenia parkowego, a ich rysunek, poczynając od placu przy alei Jachowicza, aż po ulicę Tumską łączy w spójną całość chłodną i zadrzewioną część nowego parku oraz jego trawiasto-rekreacyjną strefę relaksu i rozrywki.
Południowy plac przed budynkiem jest niczym scena - widzowie, w oczekiwaniu na spektakl, mogą przysiąść na miękkiej trawie, skryć się w cieniu drzew, lub rozgościć na obszernych ławach - reminiscencji dawnej podkowy. W słoneczne dni, to idealne miejsce spotkań, wytchnienia oraz zabawy w pobliżu orzeźwiającej płaszczyzny miejskiej sadzawki. W założeniach projektu przyroda miała scalić się z aglomeracją, w jeden przenikający się nawzajem organizm.
Nowe ścieżki, które zbierają przechodniów z historycznego deptaku, wręcz wciągają spacerowiczów w gradację kolejnych przestrzeni. Tumska niejako przedłuża się w kierunku północnym i przenika się ze ścieżkami Nowego Rynku, po którego obydwu stronach wprowadzono strefę ruchu 30km. Zabieg ten pozwala rozciągnąć sięgającą niemal Wisły promenadę, aż do nowego budynku płockiej orkiestry
Podstawową zasadą kształtowania struktury funkcjonalnej obiektu, było zapewnienie silnego powiązania przestrzeni foyer z okalającą je tkanką miejską. Rozpuszczone wokół sal koncertowych muzyczne lobby - intryguje, faluje, mieni się i odsłania, za każdym razem otwierając inną wzrokową perspektywę. Nowy Rynek, dzięki muzycznej inwestycji, stanie się miejscem manifestującym silny związek instytucji kultury z miastem. Będzie to ośrodek otwarty i dostępny dla wszystkich, nie tylko dla melomanów. Poszukiwanie wartości architektonicznych najwyraźniej oddaje sama elewacja. W zależności od perspektywy, z której ogląda ją obserwator, jest niemal całkowicie transparentna, lub też przymyka się niepostrzeżenie. Najmocniejszy efekt gry światła oraz kulminacja muzycznego odkształcenia elewacji, przypada od strony Alei Jachowicza. Umacnia to założenie stworzenia nowej bramy miasta.

Foyer koncertowe jest kontynuacją emocji i obrazów zaanonsowanych już na zewnątrz. W jasnym, monochromatycznym wnętrzu melomani mogą wyciszyć się, odpocząć na falujących ławach. Zapowiedzią koncertowych doznań, są wnęki wejść do sal – jedyne elementy we foyer w intensywnym kolorze naturalnego materiału. Jedna z nich to płonąca miedziana nisza, której drewniane panele oklejono rudo-złotawymi płatkami, jak w buddyjskiej świątyni. Jej ciepłe światło promieniuje i nadaje części obszernego foyer miedziany poblask.
Główna sala koncertowa to tętniące życiem serce budynku, dusza płockiej siedziby orkiestry. Podobnie jak sala kameralna, kolorystycznie jest absolutnie w opozycji do jasnego foyer i fasady budynku. Zasada kształtowania przestrzeni sali symfonicznej jest bezwzględnie podporządkowana wymogom akustycznym. Perfekcyjny shoe-box pozwala osiągnąć najwyższe parametry, najpiękniejszą barwę dźwięku. Koncepcję akustyczną stworzyła mgr inż. Ewa Więckowska-Kosmala z zespołem: Magdaleną Czechowską i Radosławem Ciszewskim. Pod względem kolorystycznym sala ta pozostaje w dialogu z salą kameralną. Główny motyw plastyczny, to miedź w zestawieniu z tajemniczym hebanem drewna. Do gamy złoto-miedzianej zaliczamy również kolorystykę sceny, a nawet instrumentów. Głównym elementem dekorum sali jest usytuowana nad sceną kompozycja reflektorów, które są jednym z elementów kształtujących zmienną akustykę, ale jednocześnie są głównym akcentem estetycznym
Druga wnęka, to zapowiedź sali kameralnej. To czarny mat satynowo wykończonego drewna. Nisza ta nie promieniuje, nie połyskuje, ona pochłania - wciąga melomanów. Sprawia to, że wzrok powoli przyzwyczaja się do mroku i po otwarciu kolejnych akustycznych wrót wnętrze, stopniowo, odkrywa przed nami swoją tajemnicę. Sala ta jest bardzo oszczędna w środkach wyrazu jednak dzięki temu także elegancka. Architekci nazywają ją „małą czarną” - faktycznie sala jest ponadczasowa i uniwersalna - może nawet stać się niewielkim blackboxem, a umiejscowienie sceny nie jest tu stałe.
Wzdłuż wschodniej elewacji budynku zlokalizowano wejście do siedziby chóru, wejście „służbowe” i dla dostaw oraz zjazd do publicznego garażu podziemnego. W strefie tej wygospodarowano również parking dla dwóch autokarów. Ponadto z boku placu od alei Jachowicza stanął szklany kubik zapewniający klarowny i wygodny dostęp do ogólnodostępnego parkingu.

Warszawska pracownia plus3-architekci ma swoim koncie ma wiele udanych realizacji oraz kilka znaczących sukcesów konkursowych. Zespół od kilku lat specjalizuje się w projektach muzycznych. W tym roku ma się rozpocząć realizacja sztandarowego projektu pracowni: nowego kampusu Akademii Muzycznej im. Feliksa Nowowiejskiego w Bydgoszczy.
- Więcej o:
![Sala Koncertowa CKK Jordanki w Toruniu Sala Koncertowa CKK Jordanki w Toruniu]()
Toruńska sala koncertowa. Zaglądamy do niezwykłego wnętrza [ZDJĘCIA]
![Budowa sali koncertowej na toruńskich Jordankach 21.09.2015 Torun . Budowa sali koncertowej na Jordankach . Fot. Mikolaj Kuras / Agencja Gazeta DLOTO strony lokalne GW - Toruń ZDJĘCIE DO WKŁADKI: DLOTO strony lokalne GW - Toruń]()
Nowa sala koncertowa w Toruniu prawie gotowa. Jak wyszło pikado? [GALERIA]
![Projekt Państwowej Szkoły Muzycznej w Rybniku. Jury za najlepszą pracę uznało projekt pracowni HS99 z Koszalina. Projekt Państwowej Szkoły Muzycznej w Rybniku. Jury za najlepszą pracę uznało projekt pracowni HS99 z Koszalina.]()
Nowa sala koncertowa w Rybniku [WYNIKI KONKURSU]
![Szkoła Muzyczna w Jastrzębiu-Zdroju Szkoła Muzyczna w Jastrzębiu-Zdroju]()
Sala koncertowa przy szkole muzycznej w Jastrzębiu-Zdroju [WYNIKI KONKURSU]
![Sala Koncertowa Akademii Muzycznej w Łodzi sala koncertowa, Akademia Muzyczna w Łodzi]()
Nowoczesna Sala Koncertowa Akademii Muzycznej w Łodzi
![Projekt nowego Muzeum morskiego w Łebie Projekt nowego Muzeum morskiego w Łebie]()
[ŁEBA] Drewno i liny okrętowe. Powstanie nowe Muzeum Morskie
![Filharmonia Foro Boca - projekt: Rojkind Arquitectos Filharmonia Foro Boca - projekt: Rojkind Arquitectos]()
Foro Boca: niczym skała z betonu. Nowa filharmonia w Meksyku
![Elbphilharmonie - widok z lotu ptaka. Elbphilharmonie - widok z lotu ptaka.]()
Elbphilharmonie - imponująca filharmonia nad Łabą

























