Light house - lekki i mobilny dom na lato
Produkowane niegdyś przypominające piramidę domy Brda do dziś nie doczekały się godnego następcy. Inwestorzy marzący o letnim domku zmuszeni są do poszukiwań indywidualnych rozwiązań, które często wcale nie okazują się ani proste, ani tanie w realizacji. Tą lukę dostrzega coraz więcej polskich pracowni i tworzy prototypy domów, które mogłyby stać się szybkim i tanim spełnieniem marzeń o własnym domku na plaży.


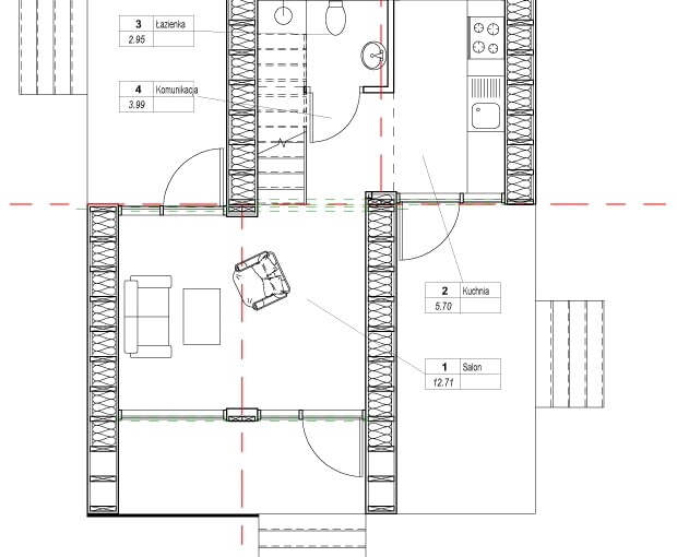
Jednym z tych projektów jest Light House zaprojektowany w pracowni Sikora Wnętrza. Gotowy domek składa się z ośmiu prefabrykowanych elementów przygotowanych do transportu i prostego i szybkiego montażu na działce. Niewielka bryła domku spełnia wszystkie podstawowe warunki stawiane przed tego typu budynkami: jest lekka, mobilna, tania, szybka w montażu, a dodatkowo estetyczna i wygodna w użytkowaniu.
Na parterze zmieściła się niewielka część dzienna, kuchnia oraz łazienka z prysznicem. Dodatkowa przestrzeń mogąca pełnić funkcję sypialni została wygospodarowana nad kuchnią.
Budynek powstał w pracowni Marek+Sikora Architektura. Jego autorzy - mgr inż. arch. Andrzej Marek oraz dr Jan Sikora podkreślają że dom jest lekki nie tylko z nazwy:
Budynek jest lekki i przenośny. Składa się z 8 prefabrykowanych elementów skręcanych w docelowej lokalizacji domu. LIGHTHOUSE jest także „lekki” wizualnie. Projektując budynek staraliśmy się usunąć wszelkie zbędne elementy, pozostawiając samą esencję niewielkiego domku wypoczynkowego. Budynek jest lekki – bo otwarty na otaczający krajobraz. Zawieszony nieco ponad terenem oferuje duże przeszklenia i dwa rozległe tarasy zachęcające do interakcji z otoczeniem.
Elewacje zostały wykonane z drewnianych elementów tworzących rodzaj poziomych listewek. Cześć z nich została nieco wysunięta przed lico elewacji i tworzy rodzaj rusztu częściowo osłaniające duże przeszklone partie budynku i wyciszające przestrzeń jednego z tarasów.
ZOBACZ TEŻ WIDEO: Domek Baby Jagi. Więcej o tym projekcie przeczytaszTUTAJ.
- Więcej o:
- dom jednorodzinny
![Dom w Trokach, proj. Aketuri Architektai Dom w Trokach, proj. Aketuri Architektai]()
Skromny i uroczy. Kryty łupkiem dom w Trokach
![Dom Baby Jagi w Rzepiskach Dom Baby Jagi w Rzepiskach]()
Ma 25 m kw. ale mieści się w nim wszystko co potrzeba. Dom rekreacyjny w Tatrach
![Domy letniskowe w szwajcarskiej Jurze Domy letniskowe w szwajcarskiej Jurze]()
Domki letniskowe w szwajcarskiej Jurze. Sześć projektów nagrodzonych pracowni
![Przebudowa domu letniskowego Przebudowa domu letniskowego]()
Przebudowa domku Brda. Dom z szufladą
![Fot z lewej: Sanatorium Bałtyk; z prawej u góry: Sanatorium i Szpital Uzdrowiskowy Równica; Z prawej na dole: akład Przyrodoleczniczy w Kołobrzegu 1967-1968 Fot z lewej: Sanatorium Bałtyk; z prawej u góry: Sanatorium i Szpital Uzdrowiskowy Równica; Z prawej na dole: akład Przyrodoleczniczy w Kołobrzegu 1967-1968]()
Kuracjusze i wczasy zakładowe. Najbardziej znane ośrodki wczasowe z PRL-u
![Dom w Jastrzębiej Górze. Proj. Archmondo Dom w Jastrzębiej Górze. Proj. Archmondo]()
Dom w Jastrzębiej Górze od Archmondo. Architektura spokoju
![Z lewej: Gerrit Rietveld; Z prawej na górze: Czerwono-niebieskie krzesło ; Z prawej na dole: Dom Rietvelda w Utrechcie Z lewej: Gerrit Rietveld; Z prawej na górze: Czerwono-niebieskie krzesło ; Z prawej na dole: Dom Rietvelda w Utrechcie]()
Gerrit Rietveld. Nie tylko czerwono-niebieskie krzesło i Dom Rietvelda [ZNANI ARCHITEKCI]
![Palácio da Alvorada w Brasilii. Proj. Oscar Niemeyer Palácio da Alvorada w Brasilii. Proj. Oscar Niemeyer]()
Dom godny prezydenta. Palácio da Alvorada w Brasilii [IKONY ARCHITEKTURY]










![Light House ggPz]k*zZ[p,s~YoIO@?VY;7kXFZ645W4gs{9[c*vV@$5,f.K?el9qc]_~Un:!/](https://s3.eu-central-1.amazonaws.com/pressland-cms/cache/article_show_section_gallery_item/gr/20428457-light-house.jpeg)







