Mała Chata Podcieniowa od BXB studio. Można ją dowolnie personalizować
Mała Chata Podcieniowa przeznaczona do indywidualnej personalizacji to nowy typ usługi projektowej, nad którą zespół BXB studio pracuje już od kilku lat. Pierwsze obiekty są już na etapie zaawansowanych prac budowlanych.

„Zaprojektowane w BXB studio domy podcieniowe to obiekty designerskie, ale jednocześnie trwałe i ponadczasowe, bo zakorzenione w tradycji. Dzięki temu posiadają duszę i są czymś więcej niż tylko nowoczesnym budynkiem. Tak powstał w BXB studio Dom Małopolski(2014), Małopolska Chata Podcieniowa(2015), Podcieniowy Dom Audio-Widokowy(2020), Podcieniowy Domek(2021). Dziś prezentujemy kolejną odsłonę domu podcieniowego, przeznaczonego do indywidualnej personalizacji. Jest to zupełnie nowy rodzaj usługi projektowej opracowanej w BXB studio” - mówi Bogusław Barnaś.
Mała Chata Podcieniowa to efekt ewolucji poprzednich domów podcieniowych zaprojektowanych w BXB studio Bogusława Barnasia. Projekt ten to również owoc doświadczeń i spostrzeżeń zgromadzonych zarówno przez projektanta jak i właściciela Małopolskiej Chaty Podcieniowej. Dzięki opracowanemu systemowi sprawdzonych schematów konstrukcyjnych można znacznie szybciej i precyzyjniej realizować projekty domów dopasowanych do budżetu, indywidualnych wymagań i różnych lokalizacji, za każdym razem dostarczając autorskie, indywidualnie zaprojektowane dzieło wpisane w lokalny krajobraz. Opracowano różne warianty materiałowe i przestrzenne, które integrują się z każdym typem ukształtowania terenu – działkami płaskimi, jak również stromymi.
Mała Chata Podcieniowa to projekt przeznaczony do indywidualnej personalizacji, który daje możliwość realizacji domu inspirowanego architekturą drewnianych domów podcieniowych zlokalizowanych np. na rynku w Lanckoronie oraz jednym z bardziej ikonicznych domów jednorodzinnych z Polski – Małopolską Chatą Podcieniową.
Tak opracowany model pracy na gotowych schematach konstrukcyjnych redukuje ryzyko związane z zamówieniem projektu, którego efekt końcowy jest całkowitą niewiadomą. To dom jednorodzinny o powierzchni ok 190- 290m2, który dzięki optymalizacji konstrukcji posiada podobny program funkcjonalno- przestrzenny do znacznie większej, bo liczącej 370 m2 Małopolskiej Chaty Podcieniowej.
„Gdy Bogusław przedstawił mi wizję serii „Chat podcieniowych”, w pierwszej chwili miałem ambiwalentne odczucia - z jednej strony - ktoś wprost inspiruje się moim domem, a z drugiej – jednak fajnie, że projekt ewoluuje. W nowej serii udało się zawrzeć wszystko, co najlepsze z „królowej matki”, a dodatkowo metraż został zmniejszony przy zachowaniu „starej” funkcjonalności. Jednak najważniejsze jest to, że projekty dalej mają w sobie to coś, czyli pierwiastek Polskiej Architektury Drewnianej z domieszką BXB. Mówią, że "Królowa jest tylko jedna" – patrząc przez pryzmat nowego wcielenia „chat podcieniowych”, nowe projekty niosą ze sobą niepowtarzalną magię, jaką może dać tylko jedno wyjątkowe miejsce na ziemi - Twój dom. A Twój dom również zasługuje na to, by być równie wyjątkowy.” - Sławek Fotograf „podcieniowy” - Właściciel Małopolskiej Chaty Podcieniowej.


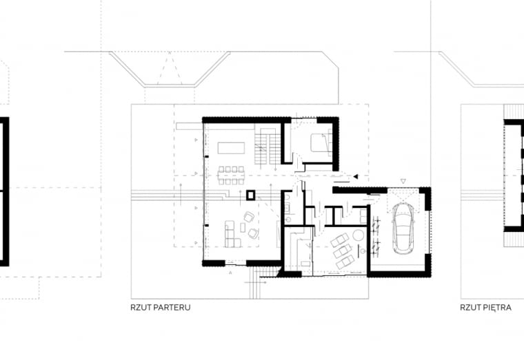
W tym domu granica między zaprojektowanym przez BXB stuido wnętrzem a przestrzenią outdoorową zaciera się dzięki nowatorskim rozwiązaniom stylistycznym i technologicznym. Pierwszym elementem przenikania jest kontynuacja kuchni wewnętrznej z kuchnią outdoorową. Zarówno kuchnia wewnętrzna, jak i zewnętrzna zachowują spójność stylistyczną. Po otwarciu przesuwnego okna obie kuchnie łączą się w jedną całość.
Kolejnym elementem przenikania wnętrza z zewnętrznym tarasem jest zachowanie kontynuacji schodów podcieniowych. W tym przypadku przeszklenie również można rozsunąć zyskując przedłużenie strefy dziennej - schodów i tarasu wyposażonego w przydomowe jacuzzi z możliwością zamykania niecki przesuwnym systemem.


W Małej Chacie Podcieniowej zaprojektowano przestrzeń gabinetu dostępnego zarówno z wewnątrz, jak i zewnętrznej strefy dojścia. Ponadto przestrzeń gabinetu jest zaprojektowana tak, aby mogła w pełni otwierać się na przestrzeń salonu.
W nowatorski sposób potraktowano dach, tworząc tzw. anty-lukarnę – czyli formowanie przestrzeni dachu za sprawą kubatury odjętej a nie dodanej jak to ma miejsce w przypadku tradycyjnej lukarny dachowej.
Opracowano również indywidualnie spersonalizowane projekty wnętrz Małej Chaty Podcieniowej. Na uwagę zasługuje tutaj szczególne potraktowanie schodów prowadzących na piętro, wypełnionych zielenią i naturalnym światłem dzięki dodatkowym dachowym przeszkleniom. Tym samym architekci zapewili równomierne doświetlenie całej strefy dziennej.
Mała Chata Podcieniowa to dom bardzo racjonalny, czerpiący bezpośrednio z tradycji polskiej architektury i dotychczasowego doświadczenia zgromadzonego podczas realizacji naszych domów podcieniowych

Mała Chata Podcieniowa to dom bardzo racjonalny, czerpiący bezpośrednio z tradycji polskiej architektury i dotychczasowego doświadczenia zgromadzonego podczas realizacji domów podcieniowych. To zarazem dom zrównoważony i ekologiczny. Zwarta bryła budynku kumulacje energię cieplną. Prosta forma architektoniczna redukuje ilość detali oraz miejsc newralgicznych, które podnoszą koszt inwestycji i przyśpieszają proces starzenia. Poprzez racjonalną strukturę architektoniczną obiekt współpracuje ze środowiskiem naturalnym, oświetleniem, stronami świata, topografią, wiatrem, wodą, osiami widokowymi. Podcień strefy dziennej oraz strefy wejściowej chroni przed negatywnym oddziaływaniem czynników atmosferycznych.
Zgodnie z życzeniem Inwestora budynek wyposażony zostanie w systemy, które zapewnią mu optymalną wydajność energetyczną zespoloną z naturalnym środowiskiem, geotermię, systemy nawadniania, systemy wykorzystania wody deszczowej, systemy ogrzewania i chłodzenia ściennego, pompy ciepła, naturalną wentylacje, wykorzystanie energii solarnej.
---
Mała Chata Podcieniowa
Architektura i Projekt Wnętrz: BXB studio Bogusław Barnaś
Zespół: Bogusław Barnaś, Bartłomiej Szewczyk, Justyna Duszyńska-Krawczyk, Bartłomiej Mierczak, Aleksandra Gawron, Magdalena Fuchs, Marcin Owczarek, Urszula Furmanik, Aleksandra Parchem,Katarzyna Trzepałka
Kategoria: Spersonalizowane Domy BXB studio
Powierzchnia: ok. 190-290 m2
Rok 2021-2024
- Więcej o:
![The Scorpio House wizualizacja The Scorpio House wizualizacja]()
Scorpio House to opracowany w BXB studio system budowy schronów o wytrzymałości atomowej
![Dom Audio-Widokowy. Proj. BXB studio Dom Audio-Widokowy. Proj. BXB studio]()
Podcieniowy Dom Audio-Widokowy od BXB studio. Elewacja jest ekranem akustycznym
![Dom z Prywatnym Giewontem w trakcie budowy. Proj. BXB studio Dom z Prywatnym Giewontem w trakcie budowy. Proj. BXB studio]()
Dom z Prywatnym Giewontem od BXB studio powstaje w Kościelisku. Zobaczcie zdjęcia z budowy
![Z lewej: Centrum Słowian i Wikingów w Wolinie; z prawej: projekt Domu Słowiańskiego Z lewej: Centrum Słowian i Wikingów w Wolinie; z prawej: projekt Domu Słowiańskiego]()
Dom Słowiański od BXB Studio. Nawiązuje do tradycyjnej zabudowy domów pierwszych Słowian
![Świetlica Terapeutyczna w Lewinie Brzeskim. Proj. Weronika Muras W² STUDIO PRACOWNIA ARCHITEKTURY Świetlica Terapeutyczna w Lewinie Brzeskim. Proj. Weronika Muras W² STUDIO PRACOWNIA ARCHITEKTURY]()
Nowa Świetlica Terapeutyczna w Lewinie Brzeskim – architektura z empatią
![Teatr im. Stefana Żeromskiego w Kielcach. Proj. rewitalizacji: WXCA Teatr im. Stefana Żeromskiego w Kielcach. Proj. rewitalizacji: WXCA]()
Jedna z najstarszych polskich scen teatralnych odzyskała dawny blask. Teatr im. Stefana Żeromskiego w Kielcach z nominacją do Mies van der Rohe Award 2026.
![Dworzec Łódź Kaliska Dworzec Łódź Kaliska]()
Nowy dworzec Łódź Kaliska już otwarty
![Wave Świnoujście Thermal & SPA. Proj. Medusa Group i IDS Architekci Wave Świnoujście Thermal & SPA. Proj. Medusa Group i IDS Architekci]()
Wave Świnoujście Thermal & SPA projektu Medusa Group i IDS Architekci. To pierwszy nadmorski kompleks termalno-wypoczynkowy w Europie Środkowej

















