Podcieniowy Dom Audio-Widokowy od BXB studio. Elewacja jest ekranem akustycznym
Powstający właśnie podcieniowy Dom Audio-Widokowy jest kontynuacją opracowanej przez BXB studio idei nagradzanej Małopolskiej Chaty Podcieniowej.


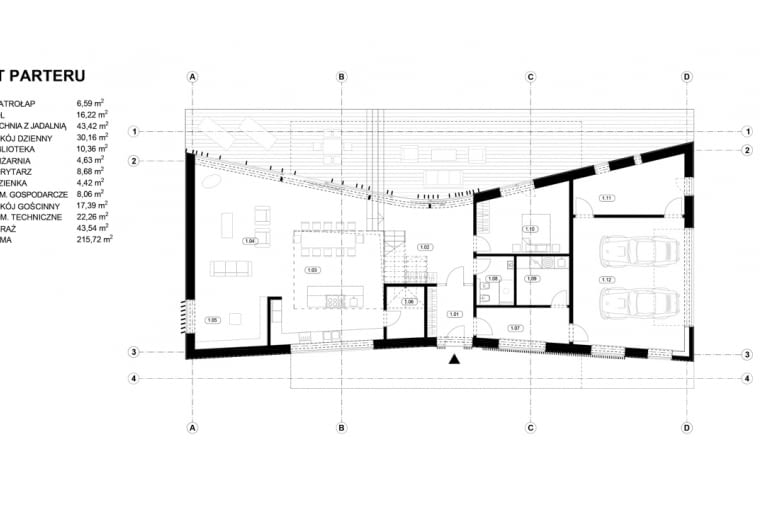
Dom Audio-Widokowy to budowany właśnie dom jednorodzinny o powierzchni 290 m kw., zaprojektowany przez pracownię Bogusława Barnasia BXB studio.
Atutem domu jest horyzontalny parter domu o delikatnie wklęsłej fasadzie. Zapewnia ona prywatność i schronienie przed sąsiadującymi domami stojącymi w tej samej linii zabudowy, a jednoczenie daje szeroką perspektywę widokową na las zlokalizowany naprzeciwko. Tak uformowana elewacja staje się ekranem akustycznym, który redukuje dźwięki z sąsiednich domów, a wzmacnia i koncentruje w przestrzeni tarasu dźwięki natury dobiegające z lasu.
Układ konstrukcyjny parteru i zewnętrzne lamele nawiązują do struktury lasu. Rozczłonkowane filary nośne łączą się stylistycznie ze strukturą fasady, formując wnętrze optycznie wolne od układu nośnego. Nałożona na parter bryła piętra jest wysunięta aż o 4 metry, tworząc podcień - zadaszoną strefę tarasu.

---
Podcieniowy Dom Audio-Widokowy
Projekt: BXB studio Bogusław Barnaś
Zespół: Bogusław Barnaś, Bartłomiej Szewczyk, Urszula Furmanik, Bartłomiej Mierczak, Magdalena Fuchs, Justyna Duszyńska Krawczyk
Powierzchnia: ok. 290 m2
Lokalizacja: Polska
Rok: 2020-2024
Klient: Prywatny
- Więcej o:
![Dom z Prywatnym Giewontem w trakcie budowy. Proj. BXB studio Dom z Prywatnym Giewontem w trakcie budowy. Proj. BXB studio]()
Dom z Prywatnym Giewontem od BXB studio powstaje w Kościelisku. Zobaczcie zdjęcia z budowy
![Mikrokamienica w Krakowie. Proj. BXB studio Bogusław Barnaś Mikrokamienica w Krakowie. Proj. BXB studio Bogusław Barnaś]()
Mikrokamienica w Krakowie od BXB studio - jeden budynek, trzy warianty
![Z lewej: Centrum Słowian i Wikingów w Wolinie; z prawej: projekt Domu Słowiańskiego Z lewej: Centrum Słowian i Wikingów w Wolinie; z prawej: projekt Domu Słowiańskiego]()
Dom Słowiański od BXB Studio. Nawiązuje do tradycyjnej zabudowy domów pierwszych Słowian
![Dom z Grotą. Proj. BXB Studio Dom z Grotą. Proj. BXB Studio]()
Dom z Grotą od BXB Studio w finale w World Architecture Festival 2023
![Rafał Olbiński poczas wernisażu wystawy "Desire" Rafał Olbiński poczas wernisażu wystawy "Desire"]()
Sztuka jako narzędzie budowania prestiżu inwestycji. Wystawa Olbińskiego w Libra Residence przykładem nowego modelu komunikacji deweloperów
![Centrum danych Centrum danych]()
Centra danych muszą być projektowane odpowiedzialnie. Jak zmniejszyć emisje CO₂ tych obiektów nawet o 40 procent?
![Robot murarski na budowie przedszkola w Koronowie Robot murarski na budowie przedszkola w Koronowie]()
W Polsce powstaje pierwszy budynek murowany przez robota. To przedszkole w Koronowie
![Mural przy ul. Niedziałkowskiego 1 w Poznaniu Mural przy ul. Niedziałkowskiego 1 w Poznaniu]()
Za tymi drzwiami kryje się tajemnica – nowy mural w sercu Poznania













