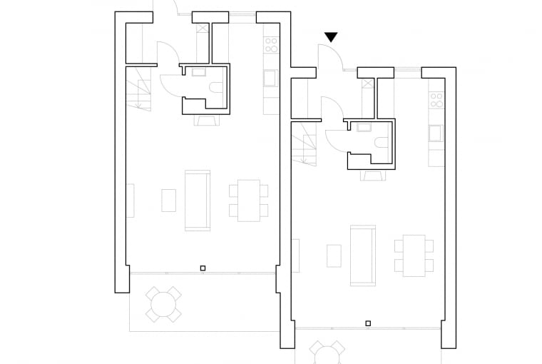
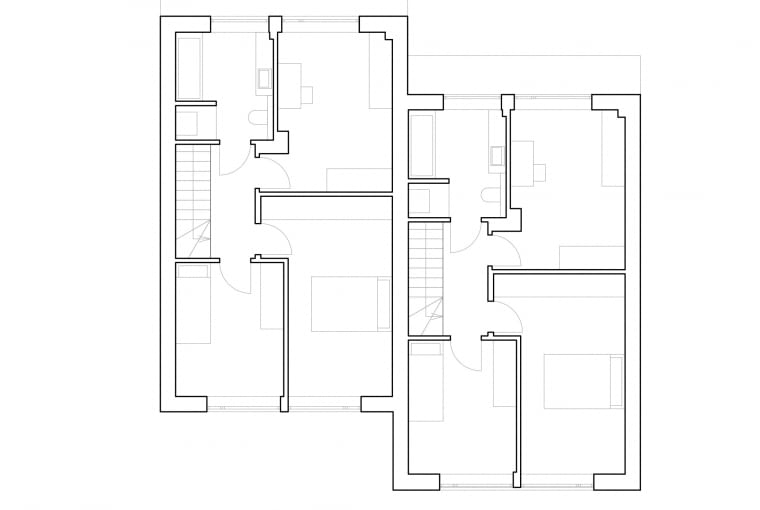
Osiedle Przystań Kolbudy niedaleko Gdańska. To projekt Archmondo
W Kolbudach, miejscowości oddalonej o ok. 15 km od centrum Gdańska, ruszyła budowa ciekawego osiedle domów jednorodzinnych. Przystań Kolbudy, autorstwa Archmondo Piotra Kowalczyka, to kilka poprzesuwanych, nowoczesnych brył, w bliskim sąsiedztwie jeziora.

Na działce w Kolbudach, bliskim sąsiedztwie jeziora, w otoczeniu zieleni trwa budowa pierwszego etapu osiedla domów jednorodzinnych - Przystań Kolbudy. Projekt architektoniczny przygotowała gdańska pracownia Archmondo Piotra Kowalczyka. Cały kompleks będzie stanowił zróżnicowany zespół nowoczesnych domów jednorodzinnych wolnostojących i w zabudowie bliźniaczej.


Układ domów harmonijnie wpisuje się w teren. Poprzesuwane bryły kreują prywatne strefy tarasów, a duże przeszklenia otwierają przestrzeń salonu na otaczającą przyrodę.
Czarne elewacje z drewna opalanego metodą YAKISUGI zostały skontrastowane białym tynkiem. Aluminiowa stolarka w beżowo-złotym odcieniu dopełnia charakter i stylistykę brył.



Przyjazna skala, kontrasty, jakość architektury i prostota form to podstawowe założenia projektowe osiedla Przystań Kolbudy.
- Więcej o:
![Smolna Sopot Smolna Sopot]()
Osiedle Smolna Sopot - prywatność i cisza w tętniącym życiem kurorcie
![Sofitel Grand Hotel w Sopocie Sofitel Grand Hotel w Sopocie]()
Grand Hotel w Sopocie. Budowę rozpoczęto 100 lat temu
![Leśna Sonata: osiedle przy Operze Leśnej w Sopocie Leśna Sonata: osiedle przy Operze Leśnej w Sopocie]()
Leśna Sonata: osiedle przy Operze Leśnej w Sopocie
![Osiedle Nowe Kolibki. Proj. Roark Studio Osiedle Nowe Kolibki. Proj. Roark Studio]()
Osiedle Nowe Kolibki z nagrodą European Property Awards. To projekt Roark Studio
![Nowa odsłona punktu Bilety/Info w Muzeum Fabryki Norblina. Proj. Jakub Szczęsny Nowa odsłona punktu Bilety/Info w Muzeum Fabryki Norblina. Proj. Jakub Szczęsny]()
Początek muzealnej opowieści w projekcie Jakuba Szczęsnego. Nowa odsłona punktu Bilety/Info w Muzeum Fabryki Norblina
![Pawilon mykwy w Oświęcimiu. Proj. Nizio Design International. Wizualizacja od ul Berka Joselewicza Pawilon mykwy w Oświęcimiu. Proj. Nizio Design International. Wizualizacja od ul Berka Joselewicza]()
Pracownia Nizio Design International zaprojektowała pawilon unikatowej mykwy w Oświęcimiu
![Hotel Bristol w Warszawie Hotel Bristol w Warszawie]()
Hotel Bristol w Warszawie ma 125 lat. Między historią a nowoczesnością
![Zapora w Pilchowicach - największa kamienna zapora w Polsce Zapora w Pilchowicach - największa kamienna zapora w Polsce]()
Zapora w Pilchowicach z 1912 roku to największa kamienna zapora w Polsce. Robi wrażenie!
















