Przedszkole w Dziećmorowicach pod Wałbrzychem. Architektura dla dzieci nie powinna być infantylna
Przedszkole w Dziećmorowicach, autorstwa pracowni Architekt Piotr Jański, to wielka architektura dla małych ludzi. Prosta, ale przemyślana, funkcjonalna i wpisująca się w krajobraz. Pełna lokalnych, wysokiej jakości materiałów i przyjaznych środowisku rozwiązań.

Dziećmorowice to niewielka miejscowość w gminie Walim na Dolnym Śląsku, oddalona od Wałbrzycha o 10 km. Właśnie tu niedawno otwarto przedszkole, którego architektura spod kreski pracowni Architekt Piotr Jański zrobiła na nas spore wrażenie!
-To kolejny już projekt przedszkola z pracowni Architekt Piotr Jański, w którym staramy się pokazać, że architektura dla dzieci nie powinna być infantylna, lecz powinna być wysokiej jakości, tworzoną z solidnych, naturalnych materiałów atrakcyjną przestrzenią inspirowaną lokalnymi tradycjami budowlanymi dobrze wpisującą się w zastany krajobraz - mówi arch. Piotr Jasiński.
Już sama działka, na której miało powstać przedszkole była sporym wyzwaniem - wąska, ze znacznym spadkiem terenu w kierunku południowym. Ten teren o złożonej budowie geologicznej podzielony jest okresowo wzbierającym ciekiem wodnym. Dodatkowo działka znajduje się w strefie ochrony konserwatorskiej ruralistycznego układu wsi. Rosła tu bujna częściowo naturalna a częściowo zdziczała zieleń z kilkoma starymi, szlachetnymi drzewami. To właśnie te uwarunkowania zdeterminowały w znacznym stopniu kształt projektu. Architekci wykorzystali pierwotne ukształtowanie zbocza i występujące cieki wodne, tworząc atrakcyjną i przyjazną środowisku strefę rekreacyjną. Zachowali stare drzewa. Bryłę nowego przedszkola umiejętnie "wpisali" w skarpę.



Przedszkole w Dziećmorowicach. Chałupa w nowoczesnym wydaniu
Bryła przedszkola w Dziećmorowicach swoją surową formą nawiązuje do okolicznej, tradycyjnej architektury, świetnie wpisując się w górski, sudecki krajobraz. Dzięki umiejętnemu wkomponowaniu w skarpę, południowa elewacja otwiera się na ulicę Bystrzycką. Dwukondygnacyjna frontowa elewacja wykończona została tradycyjnie wypalanym w Patoce klinkierem. W podcieniu znajduje się główne wejście do budynku. Aby nadać obiektowi przyjazny, ciepły wyraz, elewacje szczytowe wykończono surowym szalunkiem modrzewiowym. Dzięki temu rozwiązaniu od strony zbocza przedszkole wygląda jak zwykła, wiejska chałupa.
W budynku zastosowano wyłącznie naturalne, bardzo wysokiej jakości materiały, dlatego kompozycję zewnętrzną uzupełniają: drewniana, indywidualnie projektowana stolarka z licznymi podziałami oraz elementy obróbek blacharskich z patynowanej blachy tytanowo-cynkowej.

Przedszkole w Dziećmorowicach. Wnętrza pełne natury
Również we wnętrzach dominują naturalne materiały. Znajdziemy tu drewnianą stolarkę drzwiową z delikatnymi zdobieniami. Kauczukowe wykładziny podłogowe z domieszką kokosowych łupin sprawiają, że podłogi są miłe w dotyku i przyjemne dla bawiących się dzieci. Indywidualnie projektowane meble wykończono częściowo naturalnymi fornirami a częściowo wykonano ze sklejki. Klimat akustyczny zapewniają perforowane sufity gipsowe. Najbardziej charakterystycznym elementem wnętrza jest obszerny, dwukondygnacyjny hol z otwartymi schodami, drewnianą, rytmiczną balustradą, drewnianymi szafeczkami szatniowymi i efektownymi indywidualnie projektowanymi lampionami – ptakami.
Dzięki dużym przeszkleniom, umieszczonym głównie w elewacji południowej wnętrza są bardzo jasne i przyjemne. Sale zajęć posiadają dodatkowe okna od strony wschodniej lub zachodniej, co dodatkowo wydłuża czas nasłonecznienia. Hol doświetlony jest z kilku kierunków co bardzo uatrakcyjnia tą przestrzeń.
Układ wnętrz jest klarowny, zorganizowany wokół centralnej dwukondygnacyjnej przestrzeni. W zasadzie budynek pozbawiony jest korytarzy, wszystkie strefy funkcjonalne skomunikowane są centralnym holem. Na parterze, na prawo od wejścia znajduje się jadalnia, połączona funkcjonalnie z kuchnią. Na lewo od wejścia, w południowo- zachodnim narożniku umieszczono jedną z sal dla dzieci z własną łazienką oraz niewielkim magazynkiem. Pozostałą przestrzeń parteru zajmują pomieszczenia techniczne: pralnia, warsztat konserwatora, pomieszczenie elektryczne. W holu na każdej kondygnacji znajduje się także wc dostępne dla osób niepełnosprawnych.
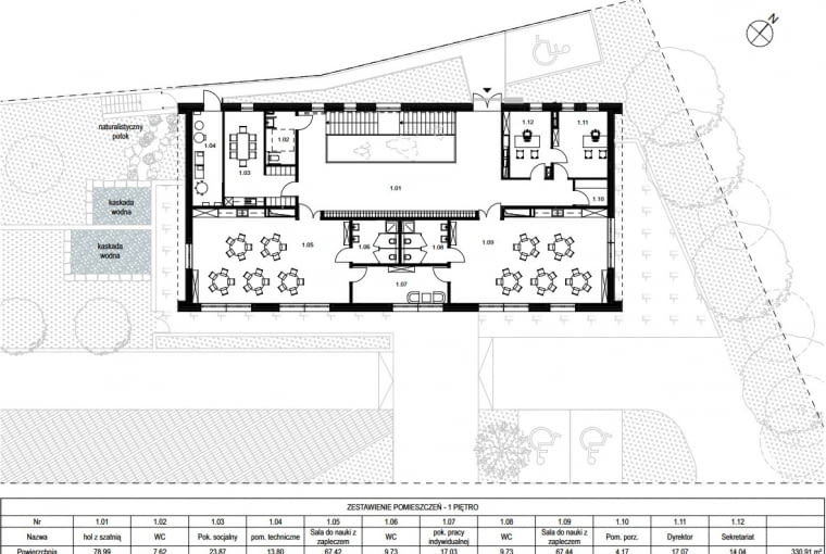
Na piętrze układ wnętrz jest podobny, od południa umieszczono dwie sale dla dzieci, połączone gabinetem psychologa – pokojem wyciszenia i pracy indywidualnej. W części północno wschodniej znajdują się biuro i sekretariat, natomiast w północno-wschodniej pokój nauczycielski i pomieszczanie techniczne.



Przedszkole w Dziećmorowicach. Strefa rekreacyjna
W przedszkolu w Dziećmorowicach nie mogło zabraknąć zewnętrznej strefy rekreacyjnej. Architekt Piotr Jański zrealizował ją w układzie tarasowym, wykorzystującym spadek terenu. Różnice w wysokości terenu, skarpy i potok zostały ukształtowane z lokalnego kamienia łamanego pochodzącego z kopalni Jenków. Na naturalistycznym potoku zaprojektowano dwa naziemne zbiorniki wodne połączone kaskadą. Spływająca potokiem woda jest więc retencjonowana, następnie gromadzona w podziemnych zbiornikach i używana do podlewania roślin oraz spłukiwania toalet a jej nadmiar odprowadzany do pobliskiego potoku. Cały system zachowuje więc naturalny kierunek spływu wód, zwiększa retencję, pozwala na wykorzystanie wody szarej a dodatkowo stanowi atrakcję części rekreacyjnej.
W kamienne murki zostały wkomponowane urządzenia placu zabaw takie jak zjeżdżalnia i mini ścianka wspinaczkowa, wykonane z naturalnych materiałów. Nasadzenia skomponowano z gatunków naturalnie występujących na działce przed rozpoczęciem inwestycji tak, by z biegiem czasu teren odzyskał swoje walory przyrodnicze nieco naruszone budową przedszkola.



Przedszkole w Dziećmorowicach. Obiekt przyjazny środowisku
Budynek zrealizowano w standardzie pasywnym. Bardzo niskie zapotrzebowanie na energię zapewniają: kompaktowa bryła, inteligentnie zaprojektowane przeszklenia (głównie od południa, chronione przed nasłonecznieniem aluminiowymi żaluzjami, wydajna izolacja termiczna z wełny mineralnej. Duża inercja termiczna osiągnięta jest dzięki masywnej konstrukcji i klinkierowej elewacji oraz pokryciu dachu dachówką ceramiczną. Te pasywne i proekologiczne rozwiązania są oczywiście wspomagane najnowocześniejszą techniką. Na dachu zamontowano instalację fotowoltaiczną o mocy 36 kW. Budynek ogrzewany jest powietrznymi pompami ciepła, które przygotowują także ciepłą wodę. Wentylacja mechaniczna nawiewno-wywiewna z odzyskiem ciepła wyposażona jest dodatkowo w sekcję chłodzenia, co pozwala zrezygnować z instalacji klimatyzacji, znacząco podnosząc komfort termiczny w cieplejszych miesiącach. Dla budynku zostanie także zaprojektowana na sąsiedniej działce mini turbina wiatrowa, a system energetyczny zostanie uzupełniony o bateryjny magazyn energii, co łącznie zapewni bardzo dużą autonomię energetyczną obiektu. Ze względu na dbałość o jakość krajobrazu, wszystkie urządzenia techniczne są ukryte w bryle budynku.
Bez wątpienia przedszkole w Dziećmorowicach to obiekt, który warto znać. Architekci stworzyli ładną, spójną, przemyślaną, przyjazną środowisku przestrzeń dla najmłodszych. To miejsce, które kształtuje gust, poczucie estetyki i świadomość architektoniczną.
- Więcej o:
![Przedszkole pasywne w Podkowie Leśnej Przedszkole Pasywne w Podkowie Leśnej]()
Przedszkole pasywne w Podkowie Leśnej
![Przedszkole i żłobek w Kłodawie - projekt pracowni ANTA architekci Przedszkole i żłobek w Kłodawie - projekt pracowni ANTA architekci]()
Przedszkole i żłobek w Kłodawie - projekt pracowni ANTA architekci
![Przedszkole nr 43 w Zabrzu. Proj. Projekt Plus Architekci Przedszkole nr 43 w Zabrzu. Proj. Projekt Plus Architekci]()
Przedszkole w Zabrzu - świat widziany przez okno sztuki
![Przedszkole Żółty Słonik w Ostrowi Mazowieckiej Przedszkole Żółty Słonik w Ostrowi Mazowieckiej]()
To być może najładniejsze przedszkole jakie widzieliście. Żółty Słonik z Ostrowi Mazowieckiej
![Offroadhouse we Wrzeszczynie. Proj. Józef Franczok (współzałożyciel pracowni PORT) Offroadhouse we Wrzeszczynie. Proj. Józef Franczok (współzałożyciel pracowni PORT)]()
Offroadhouse - dom z kontenera portowego. Miejsce stworzone by zwolnić
![Amfiteatr w Łazienkach Królewskich Amfiteatr w Łazienkach Królewskich]()
Po kiluletnim remoncie Amfiteatr w Łazienkach Królewskich zostanie oficjalnie ponownie otwarty dla publiczności. Inauguracja sezonu „Amfiteatr 2.0”
![U góry: z lewej - przedszkole Ptasie Radio w Bobrownikach; Z prawej - Bernardyńska 1 we Wrocławiu. Na dole: z lewej - Murawa 2 w Poznaniu; Z prawej - Dom Szczotkowany w Swarzędzu U góry: z lewej - przedszkole Ptasie Radio w Bobrownikach; Z prawej - Bernardyńska 1 we Wrocławiu. Na dole: z lewej - Murawa 2 w Poznaniu; Z prawej - Dom Szczotkowany w Swarzędzu]()
Cztery polskie budynki w finale Baumit Life Challenge 2026
![7R Hub Nowa Huta w Krakowie 7R Hub Nowa Huta w Krakowie]()
To będzie największy kompleks logistyki miejskiej w Europie! 7R Hub Nowa Huta w Krakowie











