Minimalistyczna bryła domu w Chwalęcicach [PROJEKT]
To przykład minimalistycznego projektu, który polega na umiejętnej kompozycji dwóch prostych form i dwóch materiałów: betonu i drewna. Powściągliwość zaowocowała harmonijną bryłą domu, wpisującą się w otoczenie.


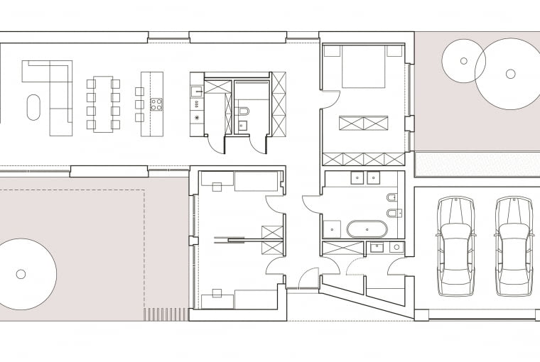
Dom jednorodzinny w Chwalęcicach zaprojektowany przez poznańską pracownię Spacelab powstał dla 4-osobowej rodziny. Dom jest zlokalizowany w województwie lubuskim, na działce przylegającej do pobliskich łąk. Powierzchnia użytkowa w budynku to 207 mkw. licząc łącznie z garażem.
Dom jest oparty na kompozycji dwóch identycznych brył, złączonych i przesuniętych względem siebie. Dachy skośne stykają się ze sobą wzdłuż linii odwodnienia, a więc zadaniem wymagającym szczególnej uwagi było zaprojektowanie instalacji przeciwdeszczowej. Dla wewnętrznego koryta między dachami oraz zewnętrznych rynien ukrytych w elewacji architekci opracowali detale oparte na doświadczeniach z takimi realizacjami.
Cały system liniowy (rynny) i punktowy (wpusty) ma podwójny system izolacji, uwzględniający także możliwość pojawienia się skroplin pod rynnami i wpustami do rur.
Elewacje zaprojektowano z tynku o efekcie surowego betonu, wybrane partie pokrywa drewno cedrowe.
Drewniana elewacja ma kontynuację w formie okładziny na bramie garażowej. Wybrano uchylną, zlicowaną z elewacją bramę, ponieważ ten wybór pozwalał na identyczne pionowe ułożenie okładziny. Przed budynkiem jest duży podjazd - brama uchylna wymaga bowiem dodatkowego przedpola dla parkującego pojazdu. Równocześnie bryła mieszcząca garaż stanowi osłonę dla prywatnego tarasu przy sypialni rodziców.
Osłonę dla pokoi dzieci i części dziennej stanowi natomiast drewniana rama tarasu głównego. W projekcie wnętrz na prośbę inwestorów miał się pojawić tzw. qube czyli centralna bryła - kubik mieszczący pomieszczenia pomocnicze i gospodarcze, obudowany kuchnią, garderobą i biblioteką. Przestrzeń skośną nad salonem otwarto, zwiększając jego przestronność (w tej części zaprojektowano dach o układzie krokwiowym), na pozostałej części domu są płaskie sufity podwieszane (dla tego obszaru wybrano więźbę na kratownicach drewnianych).
Zadanie projektowe objęło kompleksowo bryłę wraz z wnętrzami, co pozwoliło na etapie projektu budowlanego uwzględniać rozwiązania korzystne dla etapu projektowania wnętrz. Dzięki temu od razu można było zaprojektować montaż ważnych elementów wnętrzarskich jako ukryty, dopasowując konstrukcję do wymaganego efektu. Przykładowo – poziom kratownic został dopasowany do gabarytów specjalnych szczelin w sufitach podwieszanych, służących do późniejszego ukrycia elementów
konstrukcyjnych.
- Więcej o:
- dom jednorodzinny
![Dark House - nietypowy domek letniskowy zamykany do wewnątrz. Dark House - nietypowy domek letniskowy zamykany do wewnątrz]()
Dark House - dom letniskowy zamykany nie tylko na klucz
![Projekt domu jednorodzinnego w Grębaninie Projekt domu jednorodzinnego w Grębaninie]()
"Nożyczki" - ekspresyjna bryła domu w Grębaninie [PROJEKT]
![Dom Yenga, projekt: 81.waw.pl Dom Yenga, projekt: 81.waw.pl]()
Dom Yenga z drewnianych klocków [PROJEKT]
![Z lewej: Gerrit Rietveld; Z prawej na górze: Czerwono-niebieskie krzesło ; Z prawej na dole: Dom Rietvelda w Utrechcie Z lewej: Gerrit Rietveld; Z prawej na górze: Czerwono-niebieskie krzesło ; Z prawej na dole: Dom Rietvelda w Utrechcie]()
Gerrit Rietveld. Nie tylko czerwono-niebieskie krzesło i Dom Rietvelda [ZNANI ARCHITEKCI]
![Palácio da Alvorada w Brasilii. Proj. Oscar Niemeyer Palácio da Alvorada w Brasilii. Proj. Oscar Niemeyer]()
Dom godny prezydenta. Palácio da Alvorada w Brasilii [IKONY ARCHITEKTURY]
![fot.Steven Vance,CC BY 2.0 fot.Steven Vance,CC BY 2.0]()
Kosmiczne projekty, które miały podbić Ziemię. Tak wyobrażano sobie domy przyszłości
![Willa Tugenhadtów w Brnie. Proj. Mies van der Rohe Willa Tugenhadtów w Brnie. Proj. Mies van der Rohe]()
Willa Tugendhatów w Brnie. Ekskluzywny modernizm Miesa van der Rohe [IKONY ARCHITEKTURY]
![Antilia Tower w Mubaju - największy i najdroższy dom jednorodzinny na świecie Antilia Tower w Mubaju - największy i najdroższy dom jednorodzinny na świecie]()
Najdroższy i największy dom jednorodzinny świata. Antilla Tower w Mumbaju













