Tak będzie wyglądał Szyb Krystyna w Bytomiu? Nowy projekt Medusa Group
Szyb Krystyna Kopalni Węgla Kamiennego Szombierki w Bytomiu stoi przed szansą zmiany. Jeśli właściciel uzyska środki unijne, ruszą prace – koncepcja jest już gotowa. Przygotowała ją pracownia Medusa Group.

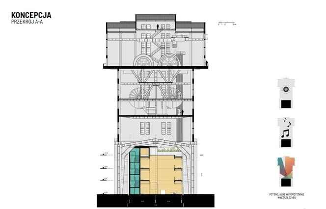
Projekt zakłada utworzenie powierzchni biurowych i usługowych. Na dole ma powstać kawiarnia, a na dachu nowego budynku, który stanie w zrewitalizowanej konstrukcji, przewidziano otwarty zielony taras.
Szyb Krystyna: jak górniczy młot
Kopalnia węgla Szombierki powstała w połowie XIX wieku. Nazywała się wówczas Hohenzollern, a szyb wydobywczy nosił imię cesarza Wilhelma (drugi szyb – odwadniający to Hohenzollern, późniejsza Ewa). Wieża była murowanym ośmiobocznym budynkiem z cegły i miała wysokość około 17 metrów. W latach 20. XX wieku szyb Wilhelma pogłębiono ponad 500 metrów, a wieżę zastąpiono nowoczesną, prawie 60-metrową konstrukcją w kształcie górniczego młota.
Budynek zbudowano na planie prostokąta i osadzono na stalowej konstrukcji niewidocznej z zewnątrz, bowiem fasada została wymurowana z nietynkowanej cegły klinkierowej. Wieża miała pionowy pasy okiem.


Szyb Krystyna: instalacja w zabytku
Szyb, który po II wojnie zmienił nazwę na Krystyna, pracował do 1997 roku, do czasu likwidacji kopalni. I choć w 2004 roku został wpisany na listę zabytków, popadał w ruinę.
Modernizowaniem szybu była zainteresowana firma Armada Development, która chciała stworzyć w wieży przestrzeń eventowo-rozrywkową. Z planów jednak nic nie wszyło, a zabytek wystawiono na sprzedaż. W 2022 roku architekci - Rafał Dziedzic, Jan Wichrowski, Michał Sokołowski oraz Przemo Łukasik z Medusa Group, stworzyli w wieży świetlno-dźwiękową instalację pod nazwą „Bijące serce Krystyny” – jej celem było przypomnienie o istnieniu tego zabytku. Nieco później przygotowali koncepcję architektoniczną – proponowali rozebrać ceglaną fasadę i pozostawić tylko stalową konstrukcję.

Szyb Krystyna: szklana kostka w wieży
Ostatecznie wieżę kupiła firma Multi Polymers i zleciła pracowni Medusa Group przygotowanie nowego projektu, zakładającego utworzenie tu powierzchni biurowych i usługowych. Architekci zaproponowali pozostawienie odremontowanej wieży i budowę w jej środku nowego budynku. Nie będzie on powiązany z konstrukcją szybu, tak, aby można go było w przyszłości rozbudowywać.
Szklana kostka będzie miała konstrukcję szkieletową i w wyraźny sposób nawiąże do oryginalnych elementów szybu Krystyna takich jak np. profile głównej konstrukcji stalowej, szklane pustaki czy elementy żelbetowe. Na dachu kostki zaplanowany został ogólnodostępny zielony taras.


Szyb Krystyna: więcej zieleni
Metamorfozę ma przejść też otoczenie szybu. Planowana jest rekultywacja i transformacja poprzemysłowego terenu, będzie zieleń, ławki i miejsca odpoczynku. Projekt zakłada także rozwiązania proekologiczne – stworzenie systemu zarządzania wodą deszczową czy zielonych tarasów na dachach.
Realizacja tego przedsięwzięcia ma kosztować 22 mln 762 tys. złotych. Inwestor zawnioskował o dofinansowanie ze środków unijnych na kwotę 15 mln 546 tys. złotych.
- Więcej o:
![Osiedle Stacja Wola. Proj. Medusa Group Osiedle Stacja Wola. Proj. Medusa Group]()
Ostatni etap osiedla Stacja Wola w Warszawie. To projekt Medusa Group
![Fuzja w Łodzi: w dawnej drukarni Scheiblera powstaną lofty. Proj. Medusa Group Fuzja w Łodzi: w dawnej drukarni Scheiblera powstaną lofty. Proj. Medusa Group]()
Fuzja w Łodzi: w budynku dawnej drukarni Scheiblera powstaną lofty. To projekt Medusa Group
![Osiedla mieszkaniowe zaprojektowane przez Medusa Group Osiedla mieszkaniowe zaprojektowane przez Medusa Group]()
Osiedla mieszkaniowe zaprojektowane przez Medusa Group
![Bolko Loft w Bytomiu Bolko Loft w Bytomiu]()
Bolko Loft ma już 20 lat! Przemo Łukasik mieszka w budynku starej lampiarni przy szybie Bolko w Bytomiu
![Elektrovnia Garbary w Poznaniu Elektrovnia Garbary w Poznaniu]()
Poznań: Elektrovnia Garbary. Nowa inwestycja na terenie dawnej elektrociepłowni
![Bunkier Club na terenie Browarów Wrocławskich Bunkier Club na terenie Browarów Wrocławskich]()
Archicom ożywia historyczny schron. Na terenie Browarów Wrocławskich powstaje podziemny Bunkier Club
![D.W Gigant w Międzygórzu D.W Gigant w Międzygórzu]()
Gigant w Międzygórzu - najpiękniejszy budynek sanatoryjny w polskich Sudetach. Jest jak z bajki!
![Willa Meander w Konstancinie-Jeziornej. Proj. PAWEL LIS ARCHITEKCI Willa Meander w Konstancinie-Jeziornej. Proj. PAWEL LIS ARCHITEKCI]()
Willa Meander w Kontancinie-Jeziornie. Architektura inspirowana biegiem rzeki













