Żłobek w Czernikowie - architektoniczna prostota z nutą nowoczesności
W niewielkim Czernikowie powstanie niedługo nowoczesny żłobek, pełen ekologicznych rozwiązań. Projekt nowoczesnej, prostej i przemyślanej bryły powstał w pracowni M&R Biuro Projektów Mieloch Sp. z o. o.

Dzieci powinny uczyć się estetyki od najmłodszych lat - w dobrze zaprojektowanych, przyjaznych środowisku miejscach. Właśnie taki żłobek powstanie niedługo w Czernikowie - niewielkiej miejscowości w województwie kujawsko-pomorskim, na Ziemi Dobrzyńskiej. Projekt architektoniczny przygotowała poznańska pracownia M&R Biuro Projektów Mieloch Sp. z o. o. To już trzeci, po przedszkolu i ścieżkach edukacyjnych, projekt tych architektów w Czernikowie.
Tym razem projekt opierał się na stworzeniu zupełnie nowej bryły, w której oprócz ustaleń planu miejscowego, w tym wymogów konserwatorskich, staraliśmy się zawrzeć nutę nowoczesności i architektonicznej prostoty, pozostającej w formie przyjaznej dla jej głównych odbiorców

Żłobek w Czernikowie - miejsce opieki nad dziećmi do trzech lat, powstanie przy ul. Słowackiego 20. Obecnie znajduje się tu przeznaczony do rozbiórki budynek posterunku policji oraz zabudowania towarzyszące. Budynek jest w złym stanie technicznym, co uniemożliwiało podjęcie kroków w kierunku jego adaptacji. Rozbudowa oraz dostosowanie parametrów użytkowych do wymaganych norm i standardów nie miałaby ekonomicznego uzasadnienia.
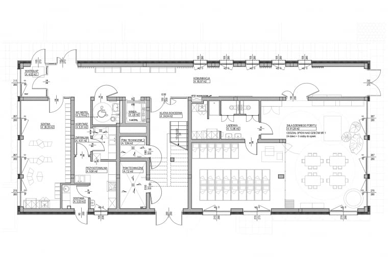
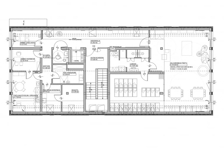
Projektowany budynek Klubu Malucha spełnia wszystkie wymagania planu miejscowego w zakresie parametrów i wskaźników zabudowy, tj. dwukondygnacyjny budynek przykryty dachem dwuspadowym o kącie nachylenia połaci dachowych 45 stopni, usytuowany równolegle do frontowej granicy działki, przyległy bezpośrednio do nieprzekraczalnej linii zabudowy w odległości 10 m od linii rozgraniczającej drogi powiatowej.

Mimo rygorystycznych wymagań określonych prawem dla tego typu zabudowy, był to projekt, który dostarczał nam mnóstwo pozytywnych emocji – któż nie chciałby choć na chwilę poczuć się znów dzieckiem, aby móc jego oczami spojrzeć w otchłań wyobraźni na miejsce, które będzie stymulować ich rozwój, w tym poczucie estetyki oraz sprawiać, że maluchy będą powracać do niego każdego dnia z jeszcze większą ochotą i energią?
W budynku mają się znaleźć dwa oddziały opieki nad dziećmi do lat trzech - każdy przeznaczony dla 24 maluchów. Oprócz sal dla dzieci, znajdą się tu pomieszczenia pomocnicze dla pracowników budynku - pokój nauczycielski, pokój dyrektora, gabinet zajęć dodatkowych oraz pomieszczenia higieniczno-sanitarne dla dzieci, ich opiekunów i pracowników. W budynku wydzielono także pomieszczenia techniczne mieszące urządzenia służące do obsługi budynku oraz pomieszczenia zaplecza kuchennego. Wnętrza będą proste, jasne ale nie pozbawione kolorów.

Zaprojektowano prostą i nowoczesną dwukondygnacyjną bryłę, z nieużytkowym poddaszem schowanym w stromym dachu. Budynek o wymiarach 11.80 m x 27.00m parametrami oraz kubaturą współgra z okoliczną zabudową. W sąsiedztwie dominuje zabudowa mieszkaniowa jednorodzinna oraz usługowa. Prosta konstrukcja nawiązuje do budynków sąsiednich, jednak zastosowana nowoczesna technologia, w tym użyte materiały sprawiają, że przestrzeń ul. Słowackiego zyska budynek o zwiększonych walorach estetycznych.

Ściany szczytowe budynku odrobinę cofnięto w stosunku do ramy budynku - zastosowano w nich duże płaszczyzny przeszkleń podkreślające wycofanie i ramę budynku. Na ścianach bocznych elewacji postawiono na naturalny materiał - drewno elewacyjne w układzie pionowym oraz płaszczyzny z tynku nad oknami rozbijające prostą bryłę budynku.
Charakterystycznym elementem elewacji budynku jest gra kolorów i materiałów: ciemniejszej szarej blachy powlekanej montowanej na rąbek stojący (zastosowanej na dachu oraz na ścianach elewacji szczytowej) i ciepłego naturalnego drewna elewacyjnego.
Stonowane fasady od ul. Słowackiego od strony ogrodu zdecydowanie wpiszą się w ład przestrzenny tej części Czernikowa. Pastelowe rolety wewnętrzne fasady jedynie odrobinę podkolorują elewację i grafitowo-szarą konstrukcję okien, zachowując harmonię przestrzeni.
Widoczne z ulicy, kątem oka, kolorowe elementy na bocznych elewacjach nie będą się odznaczały w przestrzeni ulicy - mają one podkreślić charakter obiektu.
W tylnej części działki zaprojektowano plac zabaw złożony z dwóch części o odmiennych podłożach: gumowego oraz piaszczystego, każdy z odpowiednimi dla nich urządzeniami. Plac zabaw połączony jest z budynkiem przestronnym tarasem, którego podłoże wykonane jest w tej samej technologii co gumowe podłoże placu. Całość założenia uzupełniona zostanie zielenią. Od frontu, przed główną fasadą, znajdzie się całoroczny klomb z rodzimych odmian roślin. Pojawią się trawy, niska zieleń i palisady z tui.

W budynku postawiono na nowe technologie, które mają zapewnić maksymalne wykorzystanie naturalnych źródeł energii, prądu oraz wody deszczowej do podlewania w ogrodzie.
Cieszymy się, że taka realizacja powstanie niebawem w Czernikowie. Władzom gminy gratulujemy, że nie boją się stawiać na dobrą, nowoczesną architekturę!
Nazwa inwestycji: Miejsce opieki nad dziećmi do lat trzech w miejscowości Czernikowo
Adres: Czernikowo, ul. Słowackiego 20; dz. nr 256 obręb Czernikowo
Inwestor: Gmina Czernikowo
Autorzy: M&R Biuro Projektów Mieloch Sp. z o. o. z siedzibą w Poznaniu
Koordynator projektu, projektant: mgr inż. arch. Ewa Mieloch-Stojczyk
Projektant: mgr inż. arch. Klaudyna Matelska
Wizualizacje: dr Adam Kosiorek
Zestawienie powierzchni:
powierzchnia działki: 1700,0 m2
powierzchnia zabudowy: 319,0 m2
powierzchnia użytkowa: 476,54 m2
kubatura: 2647,7 m2
Data projektu: maj 2019 r.
Data realizacji: sierpień 2020 r., inwestycja jest na etapie postępowania przetargowego


Nazwa inwestycji: Miejsce opieki nad dziećmi do lat trzech w miejscowości Czernikowo
Adres: Czernikowo, ul. Słowackiego 20; dz. nr 256 obręb Czernikowo
Inwestor: Gmina Czernikowo
Autorzy:M&R Biuro Projektów Mieloch Sp. z o. o. z siedzibą w Poznaniu
Koordynator projektu, projektant: mgr inż. arch. Ewa Mieloch-Stojczyk
Projektant: mgr inż. arch. Klaudyna Matelska
Wizualizacje: dr Adam Kosiorek
Zestawienie powierzchni:
powierzchnia działki: 1700,0 m2
powierzchnia zabudowy: 319,0 m2
powierzchnia użytkowa: 476,54 m2
kubatura: 2647,7 m2
Data projektu: maj 2019 r.
Data realizacji: sierpień 2020 r., inwestycja jest na etapie postępowania przetargowego
- Więcej o:
![Żłobek Miejski nr 1 w Wągrowcu. Projekt budynku - biuro projektowe Wojciecha Błaszaka - Pracownia 21; projekt wnętrz - DECOCAFE Żłobek Miejski nr 1 w Wągrowcu. Projekt budynku - biuro projektowe Wojciecha Błaszaka - Pracownia 21; projekt wnętrz - DECOCAFE]()
Żłobek w Wągrowcu - dobra architektura dla najmłodszych
![Przedszkole Mali Odkrywcy w Chróścicach. Proj. PORT - Józef Franczok, Marcin Kolanus Przedszkole Mali Odkrywcy w Chróścicach. Proj. PORT - Józef Franczok, Marcin Kolanus]()
Mali Odkrywcy - publiczne przedszkole w Chróścicach pod Opolem
![Pasywne przedszkole w Podkowie Leśnej. Proj. Bjerg Arkitektur. Widok od ogrodu. Pasywne przedszkole w Podkowie Leśnej. Proj. Bjerg Arkitektur.]()
Pasywne publiczne przedszkole w Podkowie Leśnej od Bjerg Arkitektur
![Przedszkole integracyjne w Górze Kalwarii Przedszkole integracyjne w Górze Kalwarii]()
Nietypowe przedszkole z typowych elementów
![Wejście do szkoły - wizualizacja Wejście do szkoły - wizualizacja]()
Przedszkole i szkoła jako drugi dom [WASZE PROJEKTY]
![Przedszkole w Wilanowie, projekt: Tremend Przedszkole w Wilanowie, projekt: Tremend]()
Kolorowe i dostępne dla wszystkich. Nowe przedszkole w Wilanowie
![Centrum Edukacji Przedszkolnej i Wczesnoszkolnej przy UKSW, projekt: OPA Architekci Centrum Edukacji Przedszkolnej i Wczesnoszkolnej przy UKSW, projekt: OPA Architekci]()
Dobrze zaprojektowane przedszkole z wnętrzami, które pobudzają kreatywność
![Przedszkole Żółty Słonik w Ostrowi Mazowieckiej Przedszkole Żółty Słonik w Ostrowi Mazowieckiej]()
To być może najładniejsze przedszkole jakie widzieliście. Żółty Słonik z Ostrowi Mazowieckiej















