Rozbudowa w pobliżu Traktu Królewskiego. Warszawski szpital powiększył się o nowy budynek
Warszawski Szpital dla dzieci w Warszawie to najstarsza tego typu placówka w Polsce. Od 1869 roku działa tuż przy Trakcie Królewskim w samym środku stołecznej Starówki. Budowa nowego obiektu w takim otoczeniu to nie lada wyzwanie. Ograniczona jest powierzchnia, a sąsiedztwo zabytkowej zabudowy zobowiązuje do szczególnej dbałości o formę.





















Warszawski Szpital dla Dzieci to placówka mieszcząca się w tej samej lokalizacji od prawie 150 lat. Borykająca się ze zbyt mała siedzibą placówka zdecydowała się na budowę nowego budynku na potrzeby leczenia pacjentów. Wykorzystano też wybudowaną w 2005 roku w stanie surowym część szpitala mającą pierwotnie mieścić dział administracyjny.
Nowy budynek zaprojektowała pracownia Chmielewski Skała Architekci. Po konsultacjach z Biurem Stołecznego Konserwatora Zabytków ustalono, że nowy budynek powinien stanąć w miejscu, w którym przed wojną działka była zabudowana i tak jak wcześniejsza zabudowa kontynuować pierzeję ulicy Karasia.
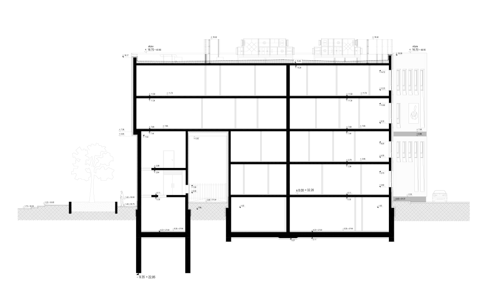
W nowym obiekcie znalazły się izba przyjęć, blok operacyjny z dwiema salami, ośrodek rehabilitacji neurologicznej, ośrodek diagnostyki obrazowej, dział farmacji oraz laboratorium. Przy niewielkim obrysie budynku zmieszczenie tylu funkcji było trudnym zadaniem. Aby wszystkie wnętrza były wygodne w użytkowaniu zdecydowano się na umieszczenie sal operacyjnych w kondygnacji podziemnej połączonej bezpośrednim przejściem z istniejącymi zabudowaniami szpitala. Rozwiązanie to zapewniło wygodne powiązanie z innymi budynkami oraz znacznie zwiększyło ilość dostępnej powierzchni na wyższych kondygnacjach.
Projektanci otworzyli także południowo-wschodni narożnik działki, który dotychczas ogrodzony murem był niedostępny dla mieszkańców, nie był też jednak wykorzystywany przez szpital. Na niewielkiej przestrzeni stworzono niedużą ogólnodostępną przestrzeń z drzewem i siedziskami. Urządzono tu także swoistą wystawę. W płytach z betonu odciśnięto rysunki małych pacjentów szpitala.
Pozostałą część elewacji frontowej wykonano z siedmiocentymetrowej grubości płyt z portugalskiego wapienia. Dzięki zastosowaniu specjalnej metody impregnacji kamienia możliwe było zrezygnowanie ze szpecących obróbek blacharskich w glifach okiennych, czy przy attyce.
Od strony dziedzińca zastosowano fasadę szklaną w kolorze czarnym dla uzyskania efektu odbicia w niej zabytkowego budynku pałacowego. Zabieg taki sprawia, że z perspektywy pomnika Kopernika tworzy się większy dystans między pałacem a nowym budynkiem, a jego masywna bryła nie przytłacza, dzięki czemu oba budynki ze sobą nie konkurują.
Dla zrównoważenia odbioru bryły w perspektywie okna dwóch górnych kondygnacji są wyższe, niż na parterze i pierwszym piętrze. Zabieg taki, na pierwszy rzut oka niezauważalny, sprawił, że budynek nie robi wrażenia przeskalowanego i wyższego niż jest w rzeczywistości.
Pospaceruj po okolicy na mapach Googla, na których uchwycony został moment budowy:
- Więcej o:
![Zintegrowane Interdyscyplinarne Centrum Symulacji Medycznej w Lublinie Zintegrowane Interdyscyplinarne Centrum Symulacji Medycznej w Lublinie]()
Centrum Symulacji Medycznej - nowa jakość kształcenia na UM w Lublinie
![Regionalne Centrum Krwiodawstwa i Krwiolecznictwa w Raciborzu Regionalne Centrum Krwiodawstwa i Krwiolecznictwa w Raciborzu]()
Centrum Krwiodawstwa w Raciborzu. Architekci: "Zderzenie biologii z technologią"
![Uniwersytecki Szpital Kliniczny w Gdańsku, więcej zdjęć na www.makowski.co Uniwersytecki Szpital Kliniczny w Gdańsku, więcej zdjęć na www.makowski.co]()
Publiczny szpital w Gdańsku. Wyjątkowa architektura na europejskim poziomie! [DUŻO ZDJĘĆ]
![Pięciokondygnacyjny obiekt będzie miał ok. 13 tys. m kw. powierzchni WROCLAW , NOWY GMACH KLINIKI TRANSPLANTACJI SZPIKU , ONKOLOGII I HEMATOLOGII DZIECIECEJ PRZY ULICY SPISKIEJ . AUTOR : MATERIALY FUNDACJI NA RATUNEK DZIECIOM Z CHOROBA NOWOTWOROWA SLOWA KLUCZOWE: WIZUALIZACJA ARCHIWUM WEWNETRZNE KLINIKA TRANSPLANTACJI SZPITAL]()
Nowoczesna klinika powstanie we Wrocławiu
![Świdnicka 21 we Wrocławiu Świdnicka 21 we Wrocławiu]()
Świdnicka 21 - nowa inwestycja NOHO Investment tuż przy wrocławskim rynku
![Offroadhouse we Wrzeszczynie. Proj. Józef Franczok (współzałożyciel pracowni PORT) Offroadhouse we Wrzeszczynie. Proj. Józef Franczok (współzałożyciel pracowni PORT)]()
Offroadhouse - dom z kontenera portowego. Miejsce stworzone by zwolnić
![Amfiteatr w Łazienkach Królewskich Amfiteatr w Łazienkach Królewskich]()
Po kiluletnim remoncie Amfiteatr w Łazienkach Królewskich zostanie oficjalnie ponownie otwarty dla publiczności. Inauguracja sezonu „Amfiteatr 2.0”
![U góry: z lewej - przedszkole Ptasie Radio w Bobrownikach; Z prawej - Bernardyńska 1 we Wrocławiu. Na dole: z lewej - Murawa 2 w Poznaniu; Z prawej - Dom Szczotkowany w Swarzędzu U góry: z lewej - przedszkole Ptasie Radio w Bobrownikach; Z prawej - Bernardyńska 1 we Wrocławiu. Na dole: z lewej - Murawa 2 w Poznaniu; Z prawej - Dom Szczotkowany w Swarzędzu]()
Cztery polskie budynki w finale Baumit Life Challenge 2026









