Dom jak wielki #. Śmiała wizja od młodych projektantów
Domy jednorodzinne to jedne z najczęstszych projektów jakie powstają w pracowniach architektonicznych. Większość z nich to mniej lub bardziej powtarzalne rozwiązania funkcjonalne przyjęte i sprawdzone od dziesięcioleci. Rzadko kiedy zdarza się odważna i ciekawa forma, która stara się zerwać z rutyną i szukać nowych dróg ekspresji. Czy da się powiedzieć jeszcze coś nowego w tak popularnym temacie jak dom jednorodzinny?


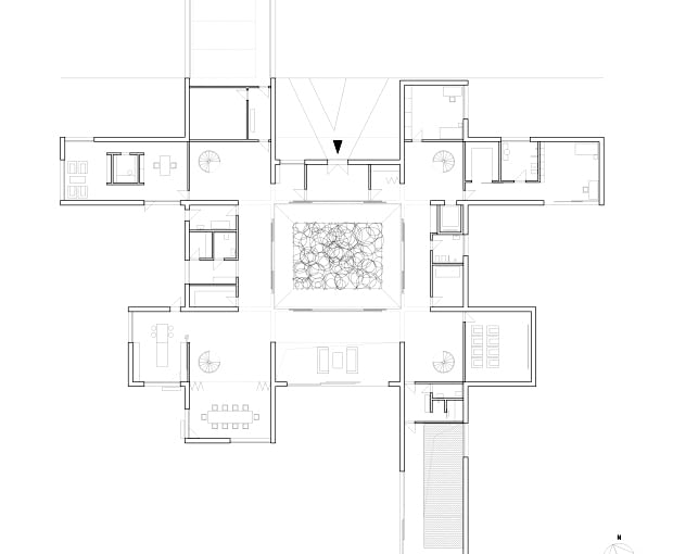
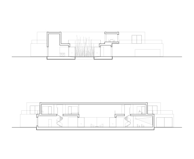
Większość domów jednorodzinnych w naszych miastach niczym szczególnym nie zaskakuje. Mniej lub bardziej prostopadłościenna forma, rytm okien i dach - wielospadowy lub płaski. Próbę wyrwania się z tych schematów podjęła pracownia Exexe, która zaproponowała śmiałą wizję domu złożonego z ośmiu prostopadłościanów ułożonych wokół wewnętrznego ogrodu. Całość tworzy dość abstrakcyjną kompozycję której rzut przypomina ogromy znak #.
Forma #domu jest odzwierciedleniem konsekwentnie zastosowanej idei - schematu projektowego - w którym każdy element otrzymał swoje miejsce, zachowując równocześnie możliwość modyfikacji - w ten sposób młodzi projektanci przedstawiają ideę swojego projektu.
Konstrukcja krzyżujących się brył budynku dzieli wnętrza na mniejsze fragmenty, które zależnie od potrzeb mogą funkcjonować razem lub osobno. Znajdujące się na końcach elementy przeznaczone zostały na pomieszczenia mieszkalne, tak, by każdemu z nich zapewnić jak najszersze otwarcie na otaczającą przestrzeń. Ramiona wokół wewnętrznego ogrodu mieszczą strefę wejściową, część dzienną, komunikację i zaplecze sanitarne.
Taki nietypowy układ jest pewnym nawiązaniem do domu atrialnego, z tym, że tutaj głównym kierunkiem otwarcia jest jednak przestrzeń otaczająca, a strefy domu i ogrodu wzajemnie się przenikają i łączą za pomocą licznych wyjść z budynku.
Tak zaplanowana przestrzeń zapewnia znaczną prywatność mieszkańcom w dowolnym miejscu budynku, skupiając całą uwagę na kontakcie z otaczającą przyrodą. Stanowi również pole do spotkań domowników i pielęgnowania relacji rodzinnych oraz sprawia, że znacznych rozmiarów budynek zyskuje ludzki wymiar i skalę.
W projekcie nie ma miejsca na kompromisy formalne. Całość została podporządkowana odważnej idei i zaprojektowana konsekwentnie według pierwotnych założeń. Podzielcie się w komentarzach jak podoba Wam się taka wizja domu otwartego na otaczający krajobraz i z jednoczesnym wewnętrznym ogrodem z przestrzenią prywatną dla domowników.
- Więcej o:
- dom jednorodzinny
![Dom pod Londynem Dom pod Londynem]()
Polski projekt z międzynarodową nagrodą. Dom pod Londynem
![Vertical Glass House Vertical Glass House]()
Dom bez okien, ale ze światłem. Bardzo nietypowy projekt z Szanghaju
![Rezydencja Futurystyczna Rezydencja Futurystyczna]()
Odważna, śmiała i ekspresyjna. Rezydencja Futurystyczna rodem z przyszłości
![Dragspelhuset - niezwykły dom ze Szwecji Dragspelhuset - niezwykły dom ze Szwecji]()
To jeden z najdziwniejszych domów jakie widzieliśmy. Do tego się rusza!
![Dom Podwodny - salon Dom Podwodny - salon]()
Basen zamiast nieba? Dom dla miłośnika nurkowania
![Dom w Jastrzębiej Górze. Proj. Archmondo Dom w Jastrzębiej Górze. Proj. Archmondo]()
Dom w Jastrzębiej Górze od Archmondo. Architektura spokoju
![Z lewej: Gerrit Rietveld; Z prawej na górze: Czerwono-niebieskie krzesło ; Z prawej na dole: Dom Rietvelda w Utrechcie Z lewej: Gerrit Rietveld; Z prawej na górze: Czerwono-niebieskie krzesło ; Z prawej na dole: Dom Rietvelda w Utrechcie]()
Gerrit Rietveld. Nie tylko czerwono-niebieskie krzesło i Dom Rietvelda [ZNANI ARCHITEKCI]
![Palácio da Alvorada w Brasilii. Proj. Oscar Niemeyer Palácio da Alvorada w Brasilii. Proj. Oscar Niemeyer]()
Dom godny prezydenta. Palácio da Alvorada w Brasilii [IKONY ARCHITEKTURY]




















