Odcisk palca jako plan. Siedziba główna Innovatrics w Bratysławie
Nowa siedziba Innovatrics w Bratysławie została pomyślana jako architektoniczne ucieleśnienie tożsamości biometrycznej. Projekt pracowni A.M. architects czerpie główną inspirację ze wzorów linii papilarnych, które ukształtowały charakterystyczny plan budynku i bezpośrednio nawiązują do istoty działalności firmy.

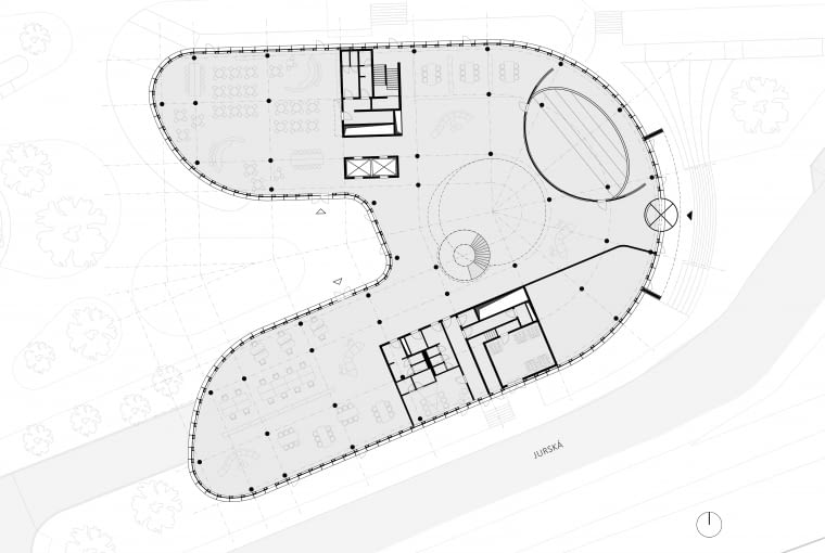
Innovatrics to słowacka firma będąca liderem w dziedzinie technologii biometrycznych. Ich nowa siedziba w Bratysławie, została zaprojektowana przez pracownię A.M. architects, która w 2018 roku wygrała konkurs architektoniczny. Firmie zależało na funkcjonalnej, czytelnej i reprezentacyjnej przestrzeni do pracy. Głównym wyzwaniem było stworzenie budynku, który mógłby połączyć różne działy, zachowując jednocześnie silny związek koncepcyjny z domeną firmy.
Projekt siedziby Innovatrics skupia się wokół dużego, centralnego atrium, które wizualnie i fizycznie łączy wszystkie części budynku. Przestrzeń ta stanowi naturalny punkt orientacji, nadając układowi intuicyjną logikę i umożliwiając swobodne poruszanie się po wnętrzu. Duży świetlik umieszczony nad atrium wpuszcza naturalne światło głęboko do budynku, tworząc komfortowe środowisko pracy i komunikacji.
Elewacja kontynuuje biometryczną metaforę poprzez subtelny rytm pionowych elementów i miękkich, zaokrąglonych linii. Kształt skrzydeł budynku przywodzi na myśl warstwowe grzbiety linii papilarnych, które stopniowo zbiegają się i otwierają w kierunku głównego wejścia. Połączenie pionowo połączonych przeszkleń i ciepłych, złotych, metalowych ram nadaje budynkowi elegancki i technicznie precyzyjny wygląd, a zaokrąglone kształty i delikatne zacienienie zapewniają zrównoważoną, ludzką skalę.


W swojej ostatecznej formie budynek nie tylko wspiera efektywne codzienne funkcjonowanie, ale także wzmacnia tożsamość firmy, oferując miejsce pracy, które odzwierciedla jej innowacyjną misję.
--
Siedziba główna Innovatrics
Architekci: A.M. architects
Lokalizacja: Bratysława, Słowacja
Kategoria: Budynek biurowy
Powierzchnia zabudowy: 2196 m²
Powierzchnia całkowita: 7623 m²
Rok: 2025
Zdjęcia: Tomas Manina
- Więcej o:
![Mies van der Rohe oraz Phyllis Lambert przy modelu Seagram Building Mies van der Rohe oraz Phyllis Lambert przy modelu Seagram Building]()
Phyllis Lambert - kobieta, która stworzyła architektów
![osiedle Novy Dum, widok współczesny, fot. Barbora i Karel Ponešovi, 2011 Pr vodce po brn'nském funkcionalismu. Projekt mapuj~c~ brn'nské architektonické d'dictv~.]()
Osiedla Werkbundu 1927 - 1932. Eksperymentalne, wzorcowe miejsca do mieszkania
![Niegdyś główny paradygmat „Forma podąża za funkcją” zmienia się na „Forma podąża za zrównoważonym rozwojem" Niegdyś główny paradygmat „Forma podąża za funkcją” zmienia się na „Forma podąża za zrównoważonym rozwojem"]()
Czy w inżynierii forma nadal podąża za funkcją? Arup: projektanci coraz mocniej koncentrują się na zrównoważonych rozwiązaniach
![Centralna Kolej Transandyjska Centralna Kolej Transandyjska]()
Centralna Kolej Transandyjska. Jedno z najważniejszych osiągnięć światowej inżynierii jest dziełem Polaka
![Smiljan Radić Clarke Smiljan Radić Clarke]()
Smiljan Radić Clarke laureatem Nagrody Pritzkera 2026
![Drezno - Kunsthofpassage. Hof der Elemente. Kunsthofpassage, Drezno]()
Kunsthofpassage w Dreźnie - Pasaż Artystycznych Dziedzińców
![Sagrada Familia w 2024 roku Sagrada Familia w 2024 roku]()
Sagrada Família w Barcelonie osiągnęła docelową wysokość
![Stacja benzynowa na Nun's Island w Montrealu zaprojektowana przez Miesa van der Rohe została zrewitalizowana w 2011 roku wg. projektu kanadyjskiej pracowni FABG. Stacja benzynowa na Nun's Island w Montrealu zaprojektowana przez Miesa van der Rohe została zrewitalizowana w 2011 roku wg. projektu kanadyjskiej pracowni FABG.]()
Zatankuj u Miesa van der Rohe - stacja benzynowa autorstwa mistrza modernizmu























