Światłoczuły dom na eksport
Polscy architekci, Anna Misiura i Łukasz Kabarowski z pracowni KMA zaprojektowali dom, w którym światło swobodnie dociera do wszystkich pomieszczeń. Swój projekt zrealizują w Dortmundzie

W architekturze światło jest równie ważne co odpowiedni budulec. To dzięki niemu projektowane przestrzenie nabierają głębi i zaczynają żyć. Nic więc dziwnego, że w wielu realizacjach ten nieuchwytny składnik odgrywa bardzo istotną rolę. Również architekci z wrocławskiej pracowni KMA głównym elementem swojego najnowszego projektu uczynili światło.
Dom światłoczuły powstanie w Dortmundzie, nad sztucznym jeziorem Phoenix-See, które utworzono na poddanym rewitalizacji terenie dawnej stalowni w Zagłębiu Ruhry. Dwa lata temu, na tym obszarze rozpoczęto budowę nowej dzielnicy złożonej z budynków mieszkalnych i biurowych, ośrodka kultury, przystani jachtowej i promenady, której sercem będzie właśnie Phoenix-See. Pomysł ten to kolejna inicjatywa, która udowadnia, że Zagłębie Ruhry to nie tylko region przemysłowy, ale i miejsce otwarte na nieszablonowe koncepcje urbanistyczne i nowoczesną architekturę.
Kameralna willa, która stanie na łagodnym zboczu powstała na zamówienie niemieckiego inwestora, związanego zawodowo ze stolicą Dolnego Śląska. Według projektu dom od ulicy prezentuje się bardzo skromnie - dwukondygnacyjny pawilon, z fasadą o precyzyjnych graficznych podziałach, podkreślonych przez zastosowanie odpowiednich kontrastujących materiałów nie wyróżnia się spośród otoczenia. Zdecydowanie ciekawsza forma zostanie ukryta pośród zieleni ogrodu - trójstopniowa elewacja, wzbogacona tarasami i przeszklonymi ścianami otworzy widok na pobliskie jezioro i fragment miasta.
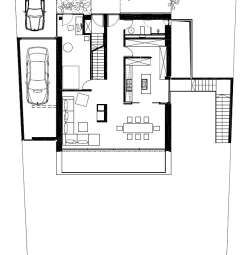
Wnętrza zorganizowano na trzech poziomach - na najniższej kondygnacji zaprojektowano sypialnię z garderobą, pokój kąpielowy i niewielką sypialnię dla gości z wyjściem do ogrodu. Parter to właściwie jedna otwarta przestrzeń, z przestronną jadalnią i salonem, z wydzieloną przesuwnymi drzwiami kuchnią oraz niewielką łazienką i gabinetem. Z salonu można wyjść na taras, a z kuchni - schodami zejść do ogrodu. Na tym poziomie, od strony ulicy, znajduje się również główne wejście do domu i wjazd do garażu. Na pierwszym piętrze zaplanowano sypialnię, dużą łazienkę i pokój dzienny, który po rozsunięciu panoramicznych okien powiększa się o powierzchnię dużego tarasu.
Jednak sprawą kluczową dla architektów było zapewnienie dostępu światła do wszystkich pomieszczeń - od sypialni w przyziemiu po salon na najwyższym piętrze. Odbijające się od połyskliwego aluminium promienie słońca przenikać będą przez duże tafle okien, załamywać się w czarnej, szklanej niecce basenu i prześwietlać dom jak delikatną, fotograficzną kliszę.
- Więcej o:
- dom jednorodzinny
![Z lewej: Gerrit Rietveld; Z prawej na górze: Czerwono-niebieskie krzesło ; Z prawej na dole: Dom Rietvelda w Utrechcie Z lewej: Gerrit Rietveld; Z prawej na górze: Czerwono-niebieskie krzesło ; Z prawej na dole: Dom Rietvelda w Utrechcie]()
Gerrit Rietveld. Nie tylko czerwono-niebieskie krzesło i Dom Rietvelda [ZNANI ARCHITEKCI]
![Palácio da Alvorada w Brasilii. Proj. Oscar Niemeyer Palácio da Alvorada w Brasilii. Proj. Oscar Niemeyer]()
Dom godny prezydenta. Palácio da Alvorada w Brasilii [IKONY ARCHITEKTURY]
![fot.Steven Vance,CC BY 2.0 fot.Steven Vance,CC BY 2.0]()
Kosmiczne projekty, które miały podbić Ziemię. Tak wyobrażano sobie domy przyszłości
![Willa Tugenhadtów w Brnie. Proj. Mies van der Rohe Willa Tugenhadtów w Brnie. Proj. Mies van der Rohe]()
Willa Tugendhatów w Brnie. Ekskluzywny modernizm Miesa van der Rohe [IKONY ARCHITEKTURY]
![Antilia Tower w Mubaju - największy i najdroższy dom jednorodzinny na świecie Antilia Tower w Mubaju - największy i najdroższy dom jednorodzinny na świecie]()
Najdroższy i największy dom jednorodzinny świata. Antilla Tower w Mumbaju
![Fallingwater - proj. Frank Lloyd Wright Fallingwater - proj. Frank Lloyd Wright]()
Fallingwater - dom nad wodospadem. Frank Lloyd Wrigth zaprojektował budynek, który wyprzedził epokę [IKONY ARCHITEKTURY]
![Dom Alberta Einsteina pod Poczdamem Dom Alberta Einsteina pod Poczdamem]()
Dom Alberta Einsteina pod Poczdamem
![Kopulaki w Warszawie. Domy na Ustrzyckiej wyglądają jak wioska Smerfów Kopulaki w Warszawie. Domy na Ustrzyckiej wyglądają jak wioska Smerfów]()
Kopulaki w Warszawie. Domy na Ustrzyckiej wyglądają jak wioska Smerfów












