Podziemny ogród i drzewo w salonie. Eco-House - dom dla miłośnika natury
Na pierwszy rzut prostopadłościenna bryła z dwuspadowym dachem. Ale gdy przyjrzymy się bliżej odkryjemy podziemny ogród, zielone ściany i drzewo rosnące w salonie. Rzuty poszczególnych pięter tworzone przez proste linie, rozchodzące w różnych kierunkach, przywodzą na myśl obrazy Wassila Kandinsky'ego. A wszystko razem tworzy nowoczesny i lekki budynek, który może stanowić prawdziwą oazę i ucieczkę od miejskiej przestrzeni, ale nie od dobrej architektury.

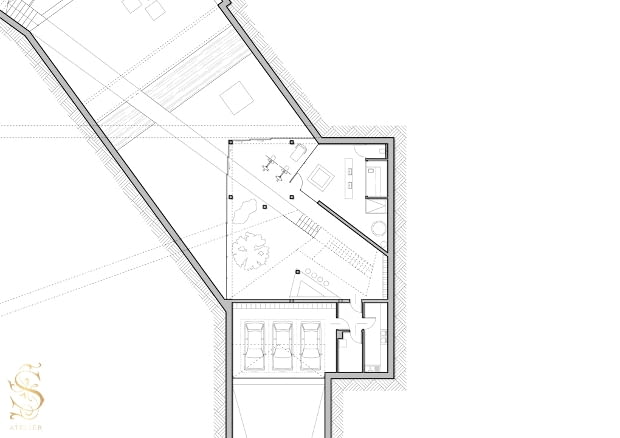
Projekt Eco-house pracowni S Atelier, to dom, który zachowuje pozory klasycznej, dobrze znanej formy miejskiego prostopadłościennego budynku z dwuspadowym dachem. Zrywa jednak z utartymi schematami tworzenia rzutu poprzez dodawania do siebie kolejnych prostokątnych pomieszczeń. Całość ma formę bardziej otwartą, a niezbędne ściany wytyczane są przez geometryczną kompozycję linii prostych. Ta plastyczna zabawa znajduje także odbicie w bryle budynku - nie ma tu klasycznych ścian i okien - jest wzajemne przenikanie się płaszczyzn z betonu i szkła, które zaginają się na dach i schodzą poniżej poziomu terenu do odsłoniętej piwnicy.
Ale tym, co wpływa na odbiór projektu jest także, a może przede wszystkim zieleń zaprojektowana jako nieodłączny element budynku. W środku znajdziemy zielone ściany obsadzone roślinami a także pokaźnych rozmiarów drzewo wokół którego rozłożone zostały poszczególne funkcje mieszkalne i które stanowi centralny punkt wokół którego toczy się życie.
Największą zmianą w stosunku do tradycyjnie pojmowanego domu jest jednak chyba odsłonięcie piwnicy poprzez zagłębienie terenu od strony ogrodowej. Pozwoliło to zaprojektować część ścian podziemnej i zazwyczaj ciemnej, czysto technicznej kondygnacji, w postaci zupełnie przeszklonych i transparentnych przegród oddzielających wnętrza od rodzaju wewnętrznego, intymnego patio wypełnionego zielenią. Zarówno podziemny, jak i połączony z nim naziemny ogród to kontynuacja geometrycznych rzutów i myślenia o przestrzeni przywodzącego skojarzenia z abstrakcyjnymi kompozycjami malarskimi. Układ ścieżek, elementu wodnego oraz rozplanowanie zieleni i niedużej ogrodowej szklarni to przedłużenie linii tworzących rzuty poszczególnych kondygnacji budynku.
Z racji ukształtowania terenu udało nam się idealnie połączyć bryłę budynku z wewnętrznym ogrodem. Znalazł się w nim przestronny taras wraz z siedziskami i hamakami, element wodny, a także liczne ścieżki łączące różne poziomy budynku z dalszym otoczeniem, do którego można zaliczyć miedzy innymi mini szklarnię czy sad z drzewami owocowymi - mówią architekci o swoim projekcie.
Parter zaprojektowany został jako strefa dzienna z otwartą kuchnią połączoną z miejscem śniadań, jadalnią i salonem. O charakterze wnętrz decyduje królujące tu drzewo widoczne z każdego pomieszczenia w domu o charakterze przestrzeni wspólnej. Z ogólnego, otwartego rzutu na parterze wydzielono jedynie pomieszczenia o charakterze technicznym oraz gabinet, mogący pełnić okazjonalnie także funkcje pokoju gościnnego.
Z parteru możemy zejść do piwnicy, która dzięki zagłębieniu terenu i szerokiemu otwarciu na podziemny ogród stanowi rodzaj drugiego parteru. Znajduje się tutaj bar z miejscem spotkań, domowe spa z sauną fińską, jacuzzi oraz natryskami i baliami z zimną wodą. Dodatkowo zlokalizowano tu też trójstanowiskowy garaż oraz pomieszczenia techniczne i magazynowe.
Piętro to strefa prywatna. Po wejściu schodami na górę znajdujemy się na antresoli mieszczącej bibliotekę i pokój zabaw z widokiem na koronę wewnętrznego drzewa. Z tej wspólnej przestrzeni możemy przejść do sypialni rodziców połączonej z garderobą i osobną łazienką lub do sypialni dziecięcych położonych po drugiej stronie budynku.
- Więcej o:
- dom jednorodzinny
![Dom Tetris w małopolskim Bukownie Dom Tetris w małopolskim Bukownie]()
Leśny dom o drewnianej elewacji od polskiej pracowni uznanej za jedną z 20 najlepszych na świecie
![Dom Green Line Dom Green Line]()
Dom otwarty na jezioro. Zielony dach służy za dodatkowy taras widokowy
![Nowa siedziba Fundacji na rzecz Nauki Polskiej Nowa siedziba Fundacji na rzecz Nauki Polskiej]()
Pierwsza w Polsce "żywa elewacja". Piękny budynek z prawdziwej ruiny [METAMORFOZA]
![Zieleń nadaje architekturze nowych znaczeń, a fuzja pomiędzy technologią i naturą powoli wchodzi do kanonu projektowania. Coraz częściej roślinność wkracza w świat budynków, staje się namiastką dzikiej przyrody, pozwala odizolować się od zgiełku metropolii, a przy tym stanowi oryginalny element estetyczny. Prezentujemy przykłady żywych fasad. (na zdjęciu: ściana Musée du quai Branly w Paryżu (autor założenia J. Nouvel) projekt fasady - Patrick Blank) paryż, branly, patrick blank]()
Żyjące fasady budynków
![Z lewej: Gerrit Rietveld; Z prawej na górze: Czerwono-niebieskie krzesło ; Z prawej na dole: Dom Rietvelda w Utrechcie Z lewej: Gerrit Rietveld; Z prawej na górze: Czerwono-niebieskie krzesło ; Z prawej na dole: Dom Rietvelda w Utrechcie]()
Gerrit Rietveld. Nie tylko czerwono-niebieskie krzesło i Dom Rietvelda [ZNANI ARCHITEKCI]
![Palácio da Alvorada w Brasilii. Proj. Oscar Niemeyer Palácio da Alvorada w Brasilii. Proj. Oscar Niemeyer]()
Dom godny prezydenta. Palácio da Alvorada w Brasilii [IKONY ARCHITEKTURY]
![fot.Steven Vance,CC BY 2.0 fot.Steven Vance,CC BY 2.0]()
Kosmiczne projekty, które miały podbić Ziemię. Tak wyobrażano sobie domy przyszłości
![Willa Tugenhadtów w Brnie. Proj. Mies van der Rohe Willa Tugenhadtów w Brnie. Proj. Mies van der Rohe]()
Willa Tugendhatów w Brnie. Ekskluzywny modernizm Miesa van der Rohe [IKONY ARCHITEKTURY]

















