Osiedle Kwadraty w Częstochowie. Motyw kwadratu spina założenie
W Częstochowie powstało kameralne Osiedle Kwadraty. Projekt sześciu budynków w zabudowie bliźniaczej o wysokim standardzie wyszedł z pracowni Grupa Verso.

Osiedle Kwadraty jest zlokalizowane przy Alei Brzozowej w dzielnicy Parkitka w Częstochowie. Zaprojektowana przez Grupę Verso inwestycja to zespół sześciu budynków w zabudowie bliźniaczej z niezależnymi lokalami na dwóch kondygnacjach. Charakterystycznym elementem osiedla jest kwadrat, który we wszystkich skalach i rozmiarach powtarza się w całym założeniu.
Osiedle Kwadrat w Częstochowie: dominujący kształt
Kwadrat pojawia się np. przy wcięciach brył z fragmentów kubatur, by stworzyć miejsce na rosnące w nich drzewa, we wnękach okiennych czy nadwieszonych ażurowych tarasach. Jest wyraźnie zarysowany barwą drewna na tle rozbielanych elewacji. Kwadraty wychodzą nawet poza budynki – na siatkę ogrodzeniową robioną na specjalne zamówienie.










Osiedle Kwadrat w Częstochowie: zieleń dokoła
Istotnym elementem osiedla jest zieleń. Lokale na parterze mają ogródki o powierzchni ok. 100 mkw., a na piętrze są przestronne balkony częściowi przysłonięte aluminiowymi lamelami o strukturze drewna. Balkony podparte zostały słupami, które rozgałęziają się na kształt konarów drzewa. Słup oraz aluminiowe lamele staną się nośnikiem roślin pnących. Z naturalnym krajobrazem kontrastuje elewacja – biała cegła została specjalnie zaprojektowana i wykonana dla tego osiedla. Nadaje ona prostoty i nowoczesności.
- Podczas projektowania, bardzo istotnym elementem była dla nas zieleń i to, w jaki sposób przeplata się ona z projektowaną zabudową, stając się jej nieodłączną częścią - mówi Jakub Cieślik z pracowni Grupa Verso.











Osiedle Kwadrat w Częstochowie: kameralność
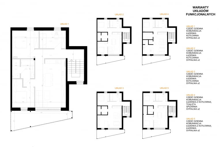
Każdy budynek ma niezależne mieszkania na dwóch kondygnacjach. Kameralność zapewnia rozmieszczenie brył - widoki z okien sąsiednich domów się nie krzyżują, a przy granicy między budynkami usytuowano klatki schodowe. Dzięki zminimalizowaniu ilości elementów konstrukcyjnych wewnątrz budynków ograniczając je do ścian zewnętrznych i jednego słupa, każde mieszkanie można było zaaranżować w czterech różnych układach.
- Więcej o:
![Dom z widokiem po horyzont - projekt Grupy Verso Dom z widokiem po horyzont - projekt Grupy Verso]()
Dom z widokiem po horyzont - projekt Grupy Verso
![Dworzec Częstochowa Główna - elewacja. Proj. toprojekt Marek Wawrzyniak / NStudio / Studio Antonini Dworzec Częstochowa Główna - elewacja. Proj. toprojekt Marek Wawrzyniak / AND Studio / Studio Antoni]()
Dworzec Częstochowa Główna - jak będzie wyglądać? Powstanie odważna, wyrazista bryła. Rozstrzygnięto konkurs architektoniczny
![Przebudowa domu z lat. 70. w Częstochowie. Proj. ANTA Architekci Przebudowa domu z lat. 70. w Częstochowie. Proj. ANTA Architekci]()
Przebudowa domu jednorodzinnego z lat 70. w Częstochowie. Udana modernizacja modernizmu
![Dom na łące. Proj. Kamil Cierpioł - grupa VERSO. dom na łące, dom jak stara chata, nowoczesny dom]()
Współczesna polska chata. Dom na łące w Cisiu koło Częstochowy
![Wanda Luxury Boutique Hotel w Szaczawnicy Wanda Luxury Boutique Hotel w Szaczawnicy]()
Architektura z duszą i szacunkiem do tradycji: nowy rozdział historii Wanda Luxury Boutique Hotel
![Dom Tekstylny Weichmanna w Gliwicach Dom Tekstylny Weichmanna w Gliwicach]()
Dom Tekstylny Weichmanna w Gliwicach. W 1923 roku Bauhaus uznał go za obiekt wzorcowy
![Zabudowa terenu dawnej fabryki Perun przy ul. Grochowskiej 301/305 w Warszawie - widok od strony ul. Grochowskiej. Proj. WWAA Zabudowa terenu dawnej fabryki Perun przy ul. Grochowskiej 301/305 w Warszawie - widok od strony ul. Grochowskiej. Proj. WWAA]()
Perun wraca do miasta. WWAA projektuje nową zabudowę mieszkaniową na historycznym terenie Pragi-Południe
![Zielona Dolina w Zabrzu Zielona Dolina w Zabrzu]()
TDJ Estate nawiązuje współpracę z Politechniką Śląską. Studenci zmierzą się z realnym wyzwaniem projektowym












