Polski start-up przygotowuje seryjną produkcję mikrodomów. Będą kosztować 100 tys. zł
Firma Solace chce umożliwić osobom z niewielkimi dochodami realizację marzenia o własnym domu. Dom został zaprojektowany tak, by koszty utrzymania ograniczyć do minimum. Zakupione przez internet elementy można złożyć samemu według dołączonej instrukcji.


Solace House
Solace House to polski startup, który chce zmienić sposób w jaki myślimy o budowie domu. Zaprojektowany przez architektów dom, można złożyć samodzielnie,korzystając z załączonej instrukcji. Dom został zaprojektowany tak, by maksymalnie ograniczyć koszty jego utrzymania. Prefabrykowany, pasywny dom w ciągu roku potrafi wytworzyć więcej energii niż zużywają domownicy.
Cena domu wynosi 100 tys. zł, a jeśli właściciel postara się o dopłaty na instalację paneli fotowoltaicznych, tę kwotę będzie można zmniejszyć nawet do 40 tysięcy - wyliczają architekci. Za te pieniądze kupujemy dom, który przyjeżdża na działkę w kontenerze.
Konstrukcja nie jest na stałe powiązana z gruntem (montowana na 12 betonowych trzpieniach), powierzchnia zabudowy nie przekracza 35 mkw., a powierzchnia mieszkalna zajmuje mniej niż 48 mkw., dlatego właściciel nie musi starać się o pozwolenie na budowę. Chęć postawienia domu trzeba zgłosić do właściwego urzędu, co również ułatwia firma przesyłając odpowiednie dokumenty. Po upływie 30 dni od zgłoszenia można rozpocząć budowę.
Dom do samodzielnego złożenia
Dom Solace montowany jest przez użytkownika samodzielnie. Elementy dostarczane na działkę klienta są wykonane w taki sposób, aby nawet mało doświadczone osoby były w stanie podołać budowie. Zgrupowanie kilkunastu prefabrykowanych części wraz z urządzeniami wyposażenia technicznego oraz elementami dodatkowymi dostarczane są na budowę w przestrzeni standardowego kontenera 40-stopowego.

Niewielkie koszty utrzymania
Dom Solace jest wykonany z elementów drewnopochodnych wytwarzanych metodami cyfrowej fabrykacji i zmierzającymi do maksymalnej automatyzacji procesu projektowo- produkcyjnego. Za ogrzewanie domu nie zapłacimy wiele. Energia do ogrzania powierzchni mieszkalnej zapewniania jest przez 24 panele fotowoltaiczne zlokalizowane na dachu budynku, którego nachylenie dostosowane jest do kąta padania promieni słonecznych.
Licznik dwukierunkowy umożliwia użytkownikowi uzyskanie dochodów ze “sprzedaży” nadwyżek energii do sieci, co powoduje brak ponoszenia kosztów uzyskania energii (ogrzewanie, grzanie wody, gotowanie itd). W sumie oszczędzamy około 5000 zł rocznie w porównaniu z kosztami ogrzania tradycyjnego domu o tej samej powierzchni. Dom jest ekologiczny i zgody z nowymi regulacyjnymi unijnymi, które mają wejść w życie w 2020 roku.
Firma Solace wykorzystuje również innowacyjną termoizolację będącą w trakcie postępowania w Urzędzie Patentowym RP. Izolacja ta pozwala na utrzymanie szczelności budynku na poziomie NF<15 kWh/m2/rok, co oznacza obniżenie kosztów ogrzewania nawet o 80%.
Mikrodom Solace ma zaspokoić podstawowe potrzeby
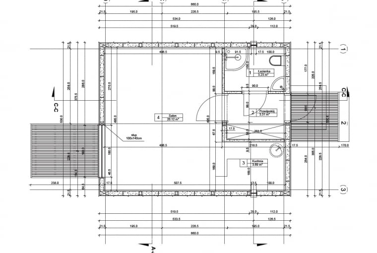
Powierzchnia mieszkalna domu wraz z antresolą wynosi 48 mkw. W tej przestrzeni architekci zaplanowali hol, kuchnię we wnęce, łazienkę i pokój dzienny. Dodatkowo na jednej z elewacji zaprojektowano pionowy ogródek. Dom Solace można przyrównać do wolnostojącej kawalerki, która ma zaspokoić podstawową potrzebę posiadania własnych czterech kątów dla osób o niskich zarobkach. Całość zamknięto w prostej formie wzorowanej na architekturze skandynawskiej.
Gdzie obejrzeć dom modelowy?
Dom ekspozycyjny stanął 26 września w Warszawie, przy ul. Rektorskiej 4 i jest oficjalnie otwarty dla potencjalnych klientów od poniedziałku do piątku w godzinach od 9:00 do 17:00. Osoby zainteresowane zakupem budynku będą mogły sprawdzić, jak czują się w przestrzeni Solace i zdecydować, czy jest to rozwiązanie, w którym chcą zamieszkać w przyszłości.
Mikrodomy - alternatywa dla drogich mieszkań
Solace to kolejna polska firma, która chce wprowadzić na rynek mikrodomy montowane z gotowych elementów dostarczanych na budowę. Niedawno pisaliśmy o Biodomku - mobilnym domu z prefabrykatów, który przygotowano w oparciu o tę samą ideę. Rosnące ceny mieszkań i wysokie koszty budowy tradycyjnego domu sprawiają, że idea małych, oszczędnych i mobilnych konstrukcji mieszkalnych cieszy się coraz większym zainteresowaniem.
- Więcej o:
- dom jednorodzinny
![Biodomek Biodomek]()
Biodomek z prefabrykatów. Jest mobilny i postawisz go bez pozwolenia na budowę
![Modelowy dom wielorodzinny - projekt nagrodzony w konkursie, autor: Kuryłowicz & Associates Wyniki konkursu na modelowy dom wielorodzinny - Mieszkanie Plus]()
Dom modelowy. Projekty osiedli z mieszkaniami na wynajem [WYNIKI KONKURSU]
![Dom w Raszynie wykonany z prefabrykatów Dom w Raszynie wykonany z prefabrykatów]()
Dom w siedem dni? Jednorodzinny dom z drewnianych prefabrykatów w Raszynie
![Stodom(a) - nowoczesny dom w Wadowicach zaprojektowany na wzór tradycyjnej stodoły Stodom(a) - nowoczesny dom w Wadowicach zaprojektowany na wzór tradycyjnej stodoły]()
StoDom(a) - nowoczesny dom zbudowany na wzór tradycyjnej stodoły
![Dom w Jastrzębiej Górze. Proj. Archmondo Dom w Jastrzębiej Górze. Proj. Archmondo]()
Dom w Jastrzębiej Górze od Archmondo. Architektura spokoju
![Z lewej: Gerrit Rietveld; Z prawej na górze: Czerwono-niebieskie krzesło ; Z prawej na dole: Dom Rietvelda w Utrechcie Z lewej: Gerrit Rietveld; Z prawej na górze: Czerwono-niebieskie krzesło ; Z prawej na dole: Dom Rietvelda w Utrechcie]()
Gerrit Rietveld. Nie tylko czerwono-niebieskie krzesło i Dom Rietvelda [ZNANI ARCHITEKCI]
![Palácio da Alvorada w Brasilii. Proj. Oscar Niemeyer Palácio da Alvorada w Brasilii. Proj. Oscar Niemeyer]()
Dom godny prezydenta. Palácio da Alvorada w Brasilii [IKONY ARCHITEKTURY]
![fot.Steven Vance,CC BY 2.0 fot.Steven Vance,CC BY 2.0]()
Kosmiczne projekty, które miały podbić Ziemię. Tak wyobrażano sobie domy przyszłości















