Tak będzie wyglądało nowe państwowe liceum w Wesołej. Konkurs zwyciężyła pracownia plus3-architekci
Prosta forma i mnóstwo przemyślanych rozwiązań. Zespół plus3-architekci zwyciężył konkurs na projekt nowego państwowego liceum ogólnokształcącego nr CLXIII w warszawskiej dzielnicy Wesoła.
Pod koniec grudnia 2019 roku rozstrzygnięto konkurs na opracowanie koncepcji architektonicznej budynku liceum ogólnokształcącego w os. Groszówka w dzielnicy Wesoła m.st. Warszawy. Do konkursu zakwalifikowano 9 uczestników, wpłynęło 6 prac. Zwyciężył projekt stołecznej pracowni plus3-architekci.
Długo wyczekiwane, państwowe liceum ogólnokształcące nr CLXIII powstanie w otoczeniu sosnowych lasów zabudowy jednorodzinnej. Koncepcja architektoniczna, przygotowana przez zespół pracowni plus3-architekci, bazowała na stworzeniu projektu budynku ekonomicznego, lecz jednocześnie atrakcyjnego pod względem przestrzennym,estetycznym i urbanistycznym. W efekcie analiz i różnorodnych prób powstało rozwiązanie wyjątkowo proste, efektywne, nowoczesne i przede wszystkim wyważone pod względem kosztów budowy.

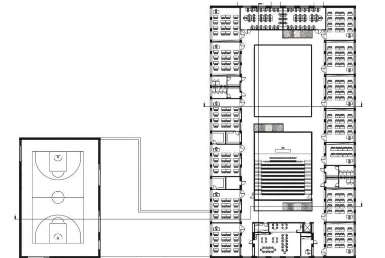
Wszystkie klasy mają orientację wschodnią lub zachodnią - są dobrze oświetlone i prawidłowo usytuowane względem stron świata. Wyjątek stanowią klasy informatyczne, które celowo umieszczono w północnej fasadzie budynku. Zasada ta zdefiniowała formę budynku. Klasy zaprojektowano na potrójnym lub podwójnym module 3,1m x 7,8m w osiach. Wymiar ten jest na tyle uniwersalny, że w osi północ południe oparto na nim cały budynek, a wszystkie funkcje wpisano tę klarowną siatkę konstrukcyjną. Dzięki takiej dyscyplinie, każda z klas jest modułowa - można w niej zastosować dokładnie takie same detale i rozwiązania, co znacznie ułatwia proces budowy i wykańczania wnętrz. Ponadto, to też zasada łatwo poddająca się adaptacjom i przebudowom (np. z dwóch klas na 3 modułach można zrobić 3 klasy mniejsze). W wieloletniej perspektywie funkcjonowania budynku jest to niewątpliwy atut.

Decyzja o oparciu się na regularnej siatce osi ma również swoje odzwierciedlenie w przyjętych rozwiązaniach architektonicznych - zarówno w elewacjach jak i we wnętrzach. W fasadach wybrano prosty rysunek okien o wymiarach 250 x 250 cm. W obrys idealnego kształtu kwadratu wpisano pięć typów podziałów szklenia i części nieprzeziernych. Takie rozwiązanie daje możliwość graficznej i estetycznej gry rysunkiem okien, bez łamania reguły i dyscypliny kanwy, na której stworzono elewacje i całość założenia.
We wnętrzach identyczną zasadę przyjęto dla zanimowania przestrzeni korytarzy. Jest to wewnętrzna fasada budynku, z którą uczniowie będą konfrontowani non-stop. Ściany pomiędzy klasami, a wnętrzem budynku stały się funkcjonalnymi meblami. W ich wnękach, również w kwadratach 250 x 250 cm wpisano różne funkcje: siedziska, szafki, meble, moduły do pracy z laptopem i inne. Możliwości jest dużo. “Ściana funkcyjna” jest dwustronna: raz tworzy przestrzeń korytarza, a innym razem klasy. To rozwiązanie bardzo proste i tanie w wykonaniu, a umożliwia złamanie monotonii i uzyskanie efektu przyjaznej przestrzeni.

Wszystkie podstawowe i niezbędne funkcje szkolne rozmieszczono dookoła fasady, jednak najważniejsze przestrzenie ukryte są wewnątrz bryły budynku. Pierwsza z nich - wewnętrzne patio, to szkolny azyl na świeżym powietrzu, strefa oddechu, wytchnienia na trawie, czy tarasie. W pobliżu, w narożniku północno-zachodnim, znajduje się stołówka szkolna.
Druga to aula - serce ważnych wydarzeń szkolnych, prezentacji, spektakli, miejsce, które odwiedza-ją z okazji uroczystości nie tylko uczniowie, ale również rodzice i goście. Dlatego przestrzeń ta zlokalizowana jest bezpośrednio przy wejściu do budynku, a jej wygląd jest wyrazisty i może stać się jednym z rozpoznawalnych symboli szkoły. Pod widownią tej sali odzyskano nowoczesną przestrzeń dla uczniów i odwiedzających szkołę. Na kilku podestach o wysokości siedzisk można przysiąść, poczekać na kolegów, poczytać, nawet poleżeć na poduchach. To takie miejsce odprężenia i spotkań w pobliżu otwartej szatni i wejścia. Tu, codziennie, od samego rana, będzie tętniło życie.
Poza zasadniczą bryłą budynku szkolnego usytuowana jest sala sportowa z zapleczem. Jej “oderwanie” od głównej części liceum wytwarza przestronny podcień szkolny, miejsce spotkań. To miejski portyk - niezastąpiona przestrzeń w budynkach edukacyjnych i publicznych. Tu można poczekać na kolegów, nie wstępując jeszcze w szkolne mury.
Budowa liceum nr CLXIII na os. Groszówka w Wesołej ruszy najprawdopodobniej w 2020 roku.
----
Zespół konkursowy plus3-architekci:
Autorzy: arch. Katarzyna Głażewska, arch. Grazyna Woźniak-Głażewska, arch. Jadwiga Trzeciakowska
Zespół: stud.arch. Bolesław Rybałtowski, arch. Magdalena Mularzuk, arch. Mateusz Dąbek
- Więcej o:
![V Liceum Ogólnokształcące we Wrocławiu V Liceum Ogólnokształcące we Wrocławiu]()
V Liceum Ogólnokształcące we Wrocławiu otrzymało nagrodę Grand Prix
![Akademeia High School przy ulicy Ledóchowskiej w Miasteczku Wilanów, projekt: medusa group Akademeia High School przy ulicy Ledóchowskiej w Miasteczku Wilanów, projekt: medusa group]()
Nowoczesne liceum na Wilanowie według projektu medusa group
![worldarchitecturenews.com]()
Liceum trochę inne niż wszystkie
![Szkoła Podstawowa im. Jana Pawła II w Psarach. Proj. Krzysztof Mroziuk i Karol Pietrucha, Mroziuk Architektura Szkoła Podstawowa im. Jana Pawła II w Psarach. Proj. Krzysztof Mroziuk i Karol Pietrucha, Mroziuk Architektura]()
Szkoła podstawowa w Psarach od Mroziuk Architektura. Pokryta dachówkami fasada nawiązuje do lokalnej tradycji
![Szkoła Podstawowa w Miliczu projektu PORT Józef Franczok, Marcin Kolanus Szkoła Podstawowa w Miliczu projektu PORT Józef Franczok, Marcin Kolanus]()
Edukacja estetyczna od najmłodszych lat. Szkoła podstawowa w Miliczu
![Szkoła Podstawowa w Książenicach Szkoła Podstawowa w Książenicach]()
Szkoła Podstawowa w Książenicach
![Przedszkole Mali Odkrywcy w Chróścicach. Proj. PORT - Józef Franczok, Marcin Kolanus Przedszkole Mali Odkrywcy w Chróścicach. Proj. PORT - Józef Franczok, Marcin Kolanus]()
Mali Odkrywcy - publiczne przedszkole w Chróścicach pod Opolem
![Pasywne przedszkole w Podkowie Leśnej. Proj. Bjerg Arkitektur. Widok od ogrodu. Pasywne przedszkole w Podkowie Leśnej. Proj. Bjerg Arkitektur.]()
Pasywne publiczne przedszkole w Podkowie Leśnej od Bjerg Arkitektur















