Mobilny szpital z kontenerów transportowych dla pacjentów z koronawirusem. Pierwszy już powstaje w Mediolanie
Pierwszy mobilny szpital z przeprojektowanych kontenerów transportowych montowany jest już w Mediolanie. W każdej jednostce (mającej podciśnieniowy system wentylacji), znajduje się niezbędny sprzęt medyczny dla dwóch osób będących na intensywnej terapii z powodu zakażenia koronawirusem.

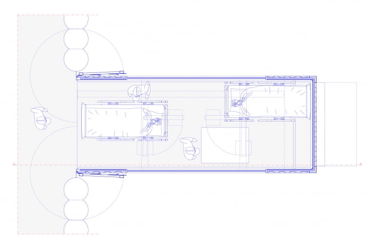
Architekci z włoskiej pracowni Carlo Ratti Associati i architekt Italo Rota zaprojektowali mobilny szpital dla pacjentów zarażonych koronawirusem. Projekt CURA (ang. Connected Units for Respiratory Ailments) to system połączonych ze sobą, przeprojektowanych kontenerów transportowych. Twórcom zależało na stworzeniu tymczasowych, szybkich w montażu struktur (jak tradycyjne namioty szpitalne), jednocześnie zapewniających wysoki poziom ochrony przed rozprzestrzenianiem się wirusa.
Ważne, by można było szybko rozmieścić je w miastach na całym świecie, błyskawicznie reagując na niedobór miejsc na oddziałach intensywnej terapii w szpitalach

W każdej jednostce (zbudowanej na bazie przeprojektowanego konteneru transportowego o długości 6,1 m) znajduje się niezbędny sprzęt medyczny dla dwóch osób będących na intensywnej terapii. Jednostki można ze sobą łączyć nadmuchiwaną konstrukcją i tworzyć różne konfiguracje z wieloma łóżkami. Projektanci przewidują, że jednostki będą "doklejane" do istniejących i stawiane na przyszpitalnych parkingach.


Każda jednostka ma system wentylacji wytwarzający podciśnienie wewnątrz, zapobiegający ucieczce zanieczyszczonego powietrza (to technika stosowana w szpitalach i laboratoriach). Projekt jest zgodny z normami AIIR (Airborne Infection Isolation Rooms).
Prototypowa jednostka powstaje właśnie w szpitalu w Mediolanie. W stolicy Lombardii jest najwięcej przyapadków zakażeń koronawirusem Covid-19.
Nad koncepcją CURA pracowali Carlo Ratti Associati i Italo Rota oraz studio inżynieryjne Jacobs i studio cyfrowe Squint / Opera, które opracowało wideo wyjaśniające projekt.
- Więcej o:
![Vittorio Gregotti w wieku 75 lat Vittorio Gregotti]()
Vittorio Gregotti nie żyje. Włoski architekt, autor m.in. Stadionu Olimpijskiego w Barcelonie zmarł z powodu koronawirusa
![lidewij edelkoort lidewij edelkoort]()
Li Edelkoort: koronawirus spowoduje kwarantannę konsumpcji. Nowy początek dla nas i środowiska
![Bauhaus Everywhere - Google Arts & Culture Bauhaus Everywhere - Google Arts & Culture]()
Bauhaus w kolekcji Google Arts & Culture. Wirtualne spacery, wystawy online i ogromna dawka wiedzy
![Dom z kontenerów. Proj. TRS Studio Dom z kontenerów. Proj. TRS Studio]()
Dom z kontenerów - tania i estetyczna alternatywa od TRS Studio
![Budowa szpitala w Wuhan dla zarażonych koronawirusem. Budowa szpitala w Wuhan dla zarażonych koronawirusem.]()
W Wuhan budują szpitale dla zarażonych koronawirusem. Mają powstać w 10 dni
![Projekt budownictwa mieszkalnego dla Hong Kongu. Horyzontalny plan mieszkania przełożono na trójpoziomowy moduł. Projekt budownictwa mieszkalnego dla Hong Kongu. Horyzontalny plan mieszkania przełożono na trójpoziomowy moduł.]()
Wieżowiec z modułów-kontenerów, idea wertykalnego miasta na nowo
![Basen w kontenerze od Cubepools. Basen w kontenerze od Cubepools.]()
Baseny w kontenerach morskich polskiej firmy Cubepools
![Dom zaprojektowali młodzi architekci: Przemek Smalcerz i Karolina Gawlik Dom zaprojektowali młodzi architekci: Przemek Smalcerz i Karolina Gawlik]()
Dom z kontenerów. Polski projekt nagrodzony w Sydney!













